map icon

Piso de cuatro habitaciones nuevo, San Pedro-Pueblo, Marbella

MarbellaSan Pedro-Pueblo
€ 725.000
4
125 m²
2
Lujo

Nota

Anuncio actualizado el 13/11/2025
Descripción

referencia: SP1049

Apartamentos de lujo de nueva construcción en Marbella Oeste: elegante vida costera cerca de Puerto Banús

Una promoción emblemática en el nuevo distrito de Marbella Oeste

Descubra un exclusivo proyecto residencial situado en Marbella Oeste, un nuevo distrito diseñado para establecer nuevos estándares en la vida urbana sostenible en la Costa del Sol. Situado entre Nueva Andalucía y San Pedro de Alcántara, este complejo se encuentra a solo 1,4 km de la playa y a poca distancia en coche del prestigioso puerto deportivo de Puerto Banús.

El distrito de Marbella Oeste combina amplios espacios verdes, servicios públicos, hostelería de lujo, colegios de primer nivel y una arquitectura de baja altura que preserva las vistas y la luz natural, ofreciendo un estilo de vida que equilibra la sofisticación y la serenidad.

Apartamentos exclusivos con diseño contemporáneo

Esta comunidad cerrada cuenta con 101 residencias de nueva construcción que van desde elegantes estudios hasta amplios apartamentos de 4 dormitorios. Diseñadas cuidadosamente para maximizar la luz natural y la vida al aire libre, todas las viviendas cuentan con interiores diáfanos y amplias terrazas.

Los tipos de propiedades incluyen:

Apartamentos en planta baja con jardines privados y algunas unidades con piscinas estilo playa
Áticos de lujo con terrazas panorámicas en la azotea y piscinas privadas
Todas las unidades cuentan con acabados de alta calidad y distribuciones luminosas y espaciosas.

Servicios de estilo resort premium

Cada elemento de la urbanización está creado para mejorar el bienestar y la comodidad. Los residentes disfrutarán de una amplia gama de lujosas instalaciones comunes, entre las que se incluyen:

Piscina infinita en la azotea con vistas panorámicas.
Piscina estilo playa con arena a nivel del jardín.
Piscina cubierta climatizada y gimnasio totalmente equipado.
Zona de spa con sauna y vestuarios.
Club social y espacio de coworking
Seguridad, conserje y recepción las 24 horas
Jardines mediterráneos
Aparcamiento subterráneo con puntos de recarga para vehículos eléctricos y trasteros privados

Ubicación privilegiada con excelentes comunicaciones

Estratégicamente situado, el proyecto ofrece un acceso inmejorable a los principales puntos de interés de Marbella:

Puerto Banús: 4 km
San Pedro de Alcántara: 2 km
Nueva Andalucía: 3 km
La Quinta Golf: 4,5 km
Guadalmina Golf: 5 km
Centro de Marbella: 10 km
Aeropuerto de Málaga: 60 km (aprox. 40 minutos por autopista directa)

Una inversión inteligente en el corazón de la Costa del Sol

Esta promoción es más que una residencia, es un estilo de vida. Tanto si busca una vivienda para todo el año, un refugio vacacional o una inversión con gran potencial, este complejo le ofrece elegancia, tranquilidad y comodidad en una de las nuevas zonas más prometedoras de Marbella.

Póngase en contacto con nosotros hoy mismo para concertar una visita privada y asegurarse su lugar en esta nueva y exclusiva promoción.
Características
Tipología
Piso
Contrato
Venta
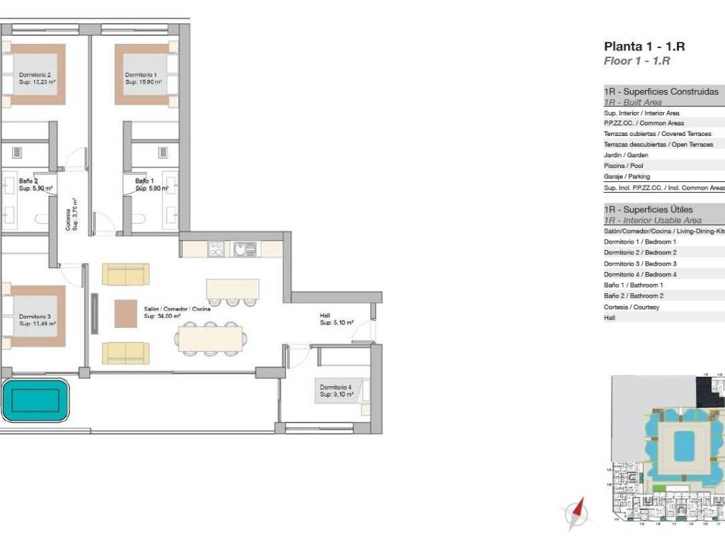
Superficie
125 m²
Habitaciones
4
Dormitorios
4
Baños
2
Terraza
No
Otras características
  • Piscina
Información del precio
Precio
€ 725.000
Precio del m²
5.800 €/m²
New
Eficiencia energética

Emisiones de CO₂

No indicado

Descubre otros ángulos del inmueble
+16
Hipoteca
%
Duración de la hipoteca

Cuota desde € 1.950 al mes

€ 217.500 (30%)

€ 507.500 (70%)

¿Quieres un presupuesto personalizado y gratuito?

Opciones adicionales

Contactar con el anunciante

O