map icon

Casa unifamiliar Venta, La Vall de Bianya

La Vall de Bianya
€ 260.000
400 m²

Nota

Anuncio actualizado el 21/07/2025
Descripción

referencia: 1180

Finca rústica con ruina a rehabilitar en plena naturaleza – Vall de Bianya (Alta Garrotxa)
Ubicada en un entorno de gran valor ecológico y paisajístico, dentro del PEIN de la Alta Garrotxa, esta finca rústica de 35,1 hectáreas se encuentra en Castellar de la Muntanya, en el extremo oriental de la Vall de Bianya, muy próxima al Parque Natural de la Zona Volcánica de la Garrotxa.
Un lugar único, rodeado de bosque y tranquilidad
La finca destaca por su ubicación privilegiada, rodeada de un bosque maduro y silencioso, con 2,6 hectáreas de terreno cultivable y el resto formado por bosque maderable, ideal para uso forestal o conservación natural. El límite sur de la propiedad lo atraviesa un arroyo con agua permanente, y en la finca se han identificado varios puntos de agua, incluido un pozo junto a la ruina.

La construcción: un proyecto con alma
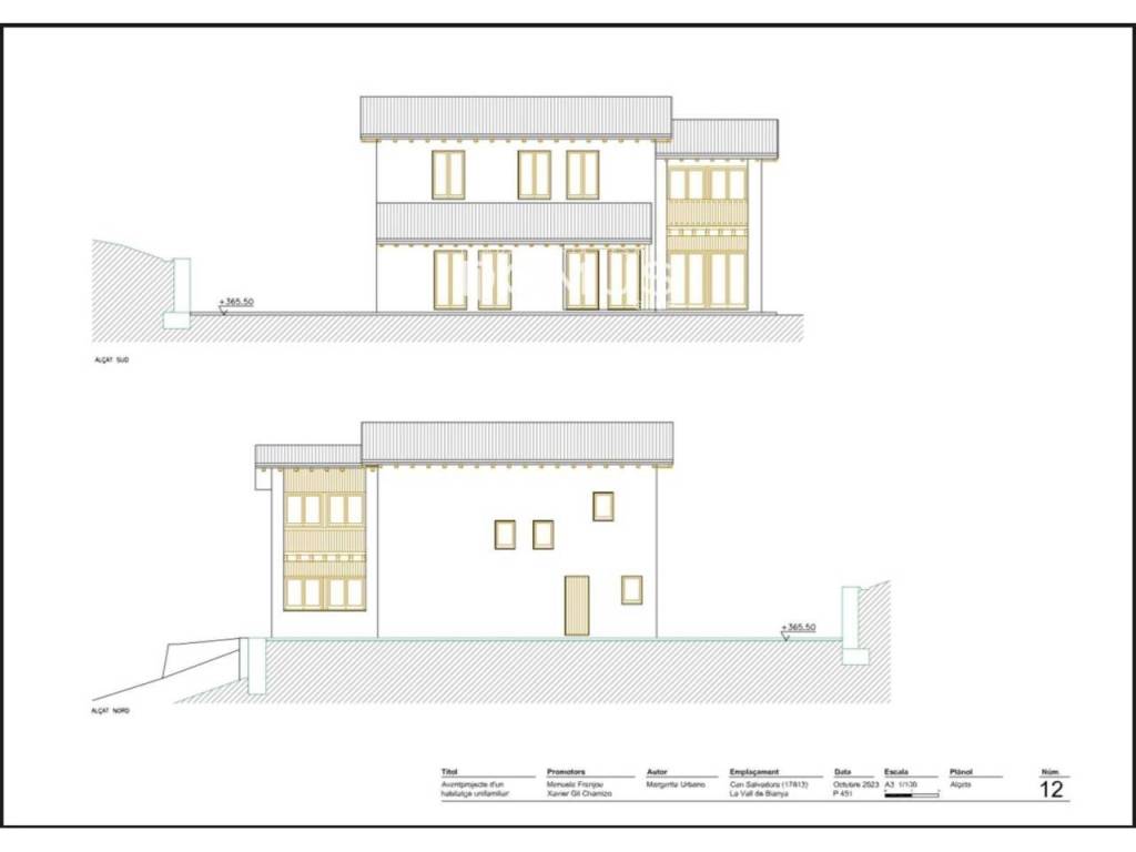
Dispone de una ruina catalogada de 420 m², orientada al sur, con un proyecto de reconstrucción ya presentado y preaprobado por el arquitecto municipal. La rehabilitación de la vivienda podría completarse en un plazo estimado de seis meses tras la aprobación final.
El diseño corre a cargo de una arquitecta especializada en bioconstrucción, que apuesta por una integración armónica con el entorno y criterios de sostenibilidad.

Infraestructura y accesos
Acceso por diferentes rutas: principal por Castellar, alternativa por Castellfollit de la Roca.
Electricidad: conexión próxima en finca colindante o posibilidad de instalación solar.
Agua: pozo y diversos puntos de agua natural disponibles.
Gestión forestal: la finca cuenta con plan forestal activo.

Ideal para...
Proyectos de residencia sostenible o bioconstrucción
Segunda residencia en un entorno natural y privado
Amantes del bosque, la vida rural y la desconexión
Inversores en fincas rústicas con potencial de valorización

Características destacadas:
Ubicación: Castellar de la Muntanya, Vall de Bianya (Alta Garrotxa)
Superficie total: 35,1 ha (2,6 ha de cultivo / resto bosque)
️ Ruina: 420 m² construibles con proyecto presentado
Pozo y arroyo con agua todo el año
⚡ Electricidad próxima / viable instalación solar
Proyecto de bioconstrucción preaprobado
Plan forestal incluido

Una oportunidad excepcional para construir una casa con esencia, rodeada de naturaleza y con acceso a servicios básicos.
Solicita más información u organiza una visita para descubrir el verdadero potencial de esta finca única en la Garrotxa.
Características
Tipología
Casa unifamiliar
Contrato
Venta
Planta
Planta baja
Superficie
400 m²
Dormitorios
0
Amueblado
No
Información del precio
Precio
€ 260.000
Precio del m²
650 €/m²
New
Desglose de los costes
Gastos de comunidad
Ningún gasto de comunidad
Eficiencia energética

Emisiones de CO₂

No indicado

Descubre otros ángulos del inmueble
+17
Hipoteca
%
Duración de la hipoteca

Cuota desde € 699 al mes

€ 78.000 (30%)

€ 182.000 (70%)

¿Quieres un presupuesto personalizado y gratuito?

Opciones adicionales

Contactar con el anunciante

O