map icon

Terreno urbanizable en Venta

Viñuela
€ 70.800
7.182 m²

Nota

Anuncio actualizado el 11/02/2026
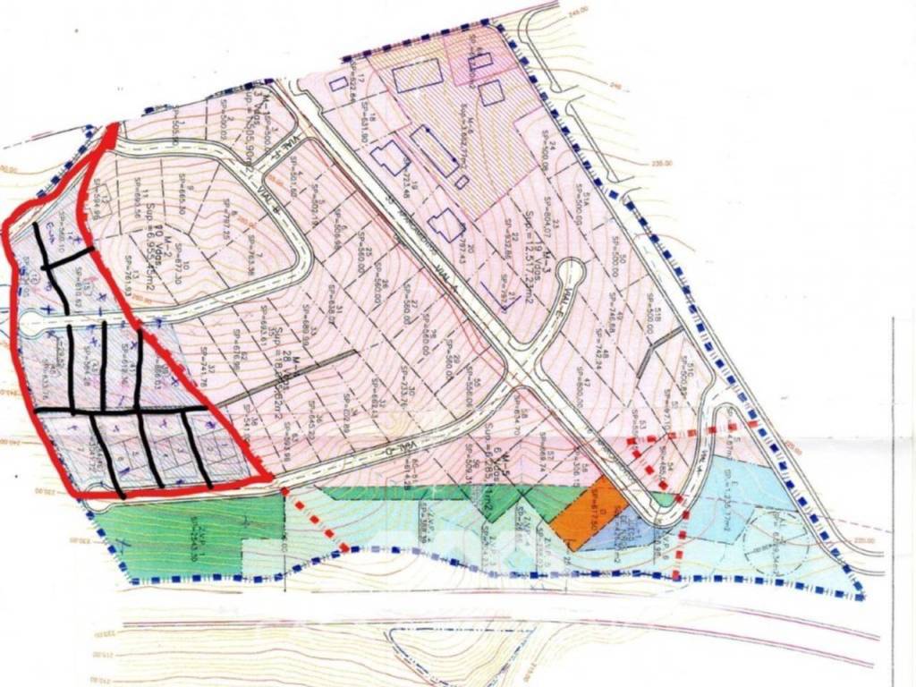
Descripción

referencia: 4852

Varias parcelas urbanizables cerca al pantano de la Viñuela. Estas parcelas están ubicadas en una zona en la que ya han construido varias villas, por lo tanto tienen constituidas las calles principales. Vistas bonitas a las montañas y el pueblo de Alcaucín. Disponemos de un total de 10 parcelas urbanizables, de distintos tamaños, desde 590 m2 hasta la mas amplia de 870 m2. Estas parcelas se puede comprar por separado, o todas juntas. Gran oportunidad para construir su propria casa/villa cerca al pantano de la viñuela.
#ref:4852 - 4852 - Inversiones Casa y Terreno S.L.
Características
Contrato
Venta
Tipología
Terreno urbanizable
Superficie
7.182 m²
Información del precio
Precio
€ 70.800
Precio del m²
10 €/m²
New
Descubre otros ángulos del inmueble
+13
Opciones adicionales

Contactar con el anunciante

O