map icon

Casa unifamiliar 2 habitaciones, muy buen estado, Este, Vélez-Málaga

Vélez-MálagaEste
€ 191.000
2
231 m²
3
Terraza

Nota

Anuncio actualizado el 18/12/2025
Descripción

referencia: MP-VEL-LMSRML

SITUACIÓN ESPECIAL:
Esta vivienda se encuentra en período de subasta,
el precio ofertado es el precio de salida.
El precio de salida es el que se indica aquí,
las personas interesadas harán su puja u oferta
y se escogerá la puja más alta para la venta del
inmueble.
LA FECHA FIN DE PUJA ES HASTA EL 31/12/2025 A LAS 18:00h

Hábitat Mediterránea le ofrece esta estupenda casa pareada, a reformar, a la venta en Vélez-Málaga, municipio perteneciente a la Axarquía, en la provincia de Málaga, con gran patrimonio histórico y cultural, y cultivos subtropicales que dan una gran variedad de productos que poder degustar en sus cocinas.

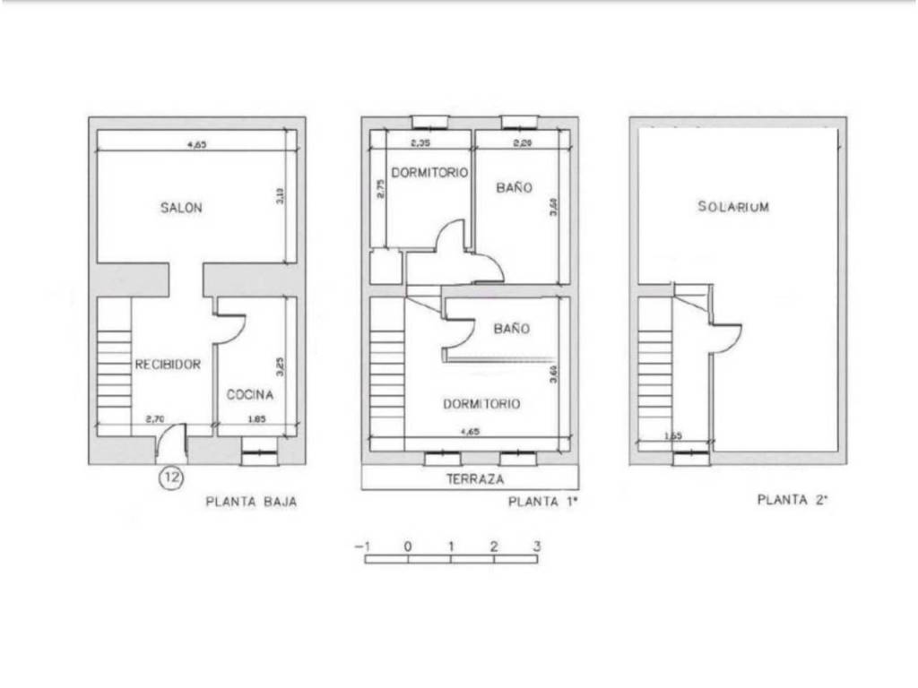
Esta casa tiene una superficie de 231`13 m² construidos, distribuidos en tres plantas: una planta baja compuesta por un garaje, salón-comedor luminoso, cocina con lavadero y acceso al patio interior, distribuidor, un cuarto de aseo y escaleras de acceso a la planta alta, en la que podrá encontrar: dos dormitorios, dos cuartos de baño, dos armarios empotrados, distribuidor y escalera con acceso a la planta de cubierta. En la última planta, la de cubierta, está compuesta de castillete, escaleras y terraza solárium de 76`23 m², con gran espacio para poder disfrutar de barbacoas familiares o zonas para tomar el sol, de lectura y relajación al aire libre.

Todos los servicios básicos están en su misma zona y alrededores: comercios, restaurantes, parque público (queda a pocos minutos del parque María Zambrano), farmacia, panadería, campo de fútbol, oficina de correos, bancos, teatro, estanco, supermercado, museo, equipamiento escolar, deportivo, sanitario, comercial y establecimientos de ocio.

Además dispone de una excelente comunicación por carretera, con la A-7, siendo la MA-4111 su principal vía de desplazamiento, y paradas de bus muy cerca, por lo que el Puerto y la playa pueden complementar su calidad de ocio veraniego.

Cuenta con un entorno muy agradable y con la comodidad de tener acceso a todas las necesidades básicas sin tener que usar vehículo.

Una excelente oportunidad de adquirir su vivienda a un precio inigualable.

¿dejará escapar esta ocasión única?

AVISO: la información que contiene este anuncio, puede estar sujeta a errores u omisiones. Las propiedades pueden estar sujetas a cambio de precio, venta o retirada del mercado. Para más información no dude en contactar con nosotros o visitando nuestra página web www.habitatmediterranea.es

CONTÁCTENOS, ESTAREMOS ENCANTADOS DE ATENDERLE.
Nuestros honorarios de agencia ya están incluidos en el precio de venta por lo que no tendrá que abonar ningún tipo de gastos por gestión o asesoramiento inmobiliario y que en cumplimiento del Decreto de la Junta de Andalucía 218/2005 del 11 de Octubre, se informa que los gastos de notario, registro, ITP y otros gastos inherentes a la compraventa no están incluidos en el precio.
Características
Tipología
Casa unifamiliar
Contrato
Venta
Planta
Planta baja
Superficie
231 m²
Habitaciones
2
Dormitorios
2
Baños
3
Terraza
Garaje, plazas de aparcamiento
1 en garaje privado
Otras características
  • Armario empotrado
  • Carpintería exterior de vidrio/metal
Detalle superficie

Vivienda

Planta
Planta baja
Superficie
231,0 m²
Coeficiente
100%
Tipo de superficie
Principal
Superficie construida
231,0 m²
Información del precio
Precio
€ 191.000
Precio del m²
827 €/m²
New
Desglose de los costes
Gastos de comunidad
Ningún gasto de comunidad
Eficiencia energética

Consumo de energia

E

Emisiones de CO₂

No indicado

Descubre otros ángulos del inmueble
+29
Hipoteca
%
Duración de la hipoteca

Cuota desde € 514 al mes

€ 57.300 (30%)

€ 133.700 (70%)

¿Quieres un presupuesto personalizado y gratuito?

Opciones adicionales

Contactar con el anunciante

O