map icon

Δυάρι άριστη κατάσταση, ισόγειο, Ègara, Terrassa

TerrassaÈgara
€ 220.000
2
92 m²
1
ΙΣ
Ναι
Βεράντα

Σημείωση

Τελευταία ενημέρωση: 06/03/2026
Περιγραφή

κωδικός: 2101/21010016/86

ESTUPENDA VIVIENDA EN VENTA, SIN COMISIONES DE AGENCIA

Excelente vivienda de dos dormitorios y un baño. Se encuentra en la planta baja de un edificio residencial. Dispone de ascensor. Situado en Nord Est en el municipio de Terrassa.

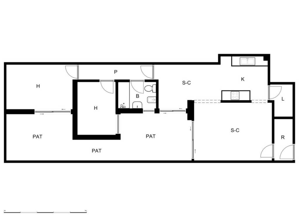
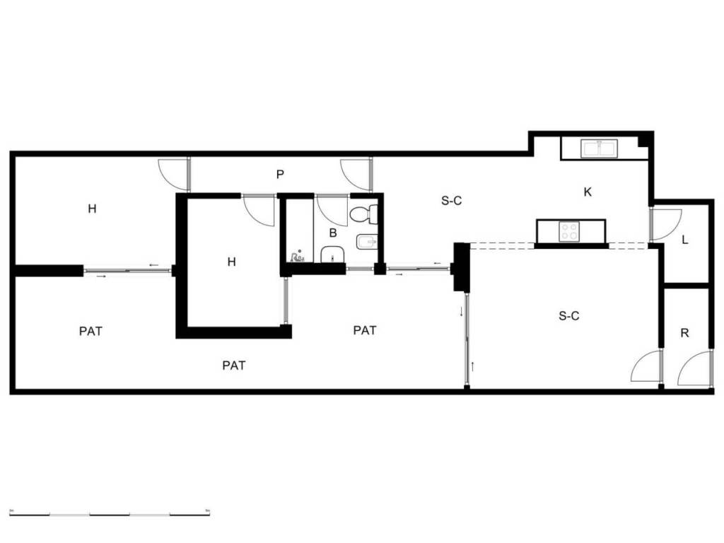
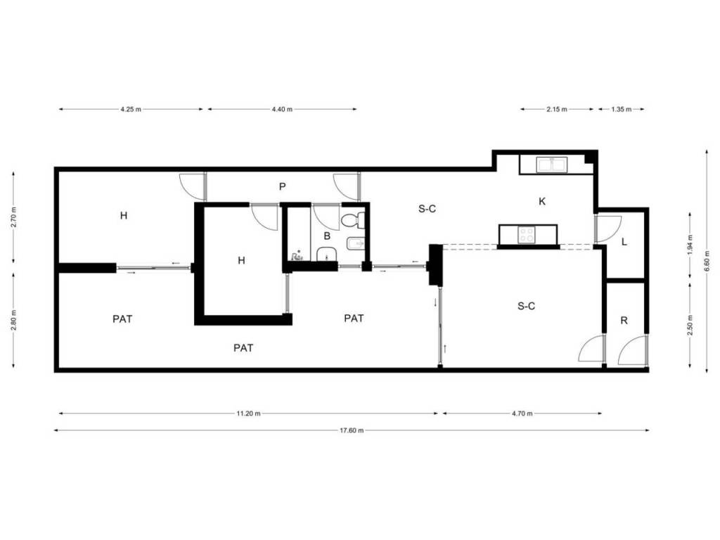
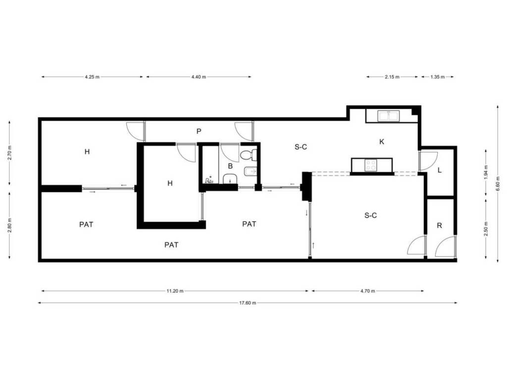
La vivienda se distribuye en dos dormitorios, salón-comedor, cocina independiente y un baño. Cuenta con cocina amueblada y equipada con muebles altos y bajos, vitrocerámica, horno y campana extractora. Además, cuenta con ascensor, terraza y estacionamiento. Dispone de calefacción individual.

Se encuentra ubicado en Nord-Est, Noreste de Terrassa. Cuenta con fácil acceso a través de las principales carreteras y buenas comunicaciones por transporte público. La parada de metro más cercana es Terrassa Est y se encuentra a menos de 20 minutos andando. La parada de autobús más cercana es Institut Blanxart y se encuentra a menos de 5 minutos andando.

En su entorno existen viviendas plurifamiliares de similares características. La zona cuenta con todo tipo de servicios básicos, el centro de salud más cercano se encuentra a 530 metros, el colegio más cercano se encuentra a 230 metros

La zona cuenta con una amplia oferta de entretenimiento con 2 parques, bares, restaurantes y comercios a pocos minutos de la vivienda.

En cuanto al transporte privado, la zona dispone de parkings privados y aparcamiento en la calle. La vivienda tiene un fácil acceso por carretera y está bien comunicado a través de la Quart Cinturo, Carretera de Terrassa y la Avinguda del Valles.

Estado de la vivienda: vacante.

La vivienda se comercializa mediante colaboradores que no cobran comisión de agencia, ofreciéndote un proceso directo, claro y sin costes añadidos.
Χαρακτηριστικά
Τύπος
Διαμέρισμα
Συμβόλαιο
Πώληση
Όροφος
Ισόγειο
Ανελκυστήρας
Ναι
Εμβαδόν
92 m²
Δωμάτια
2
Υπνοδωμάτια
2
Μπάνια
1
Βεράντα
Ναι
Γκαράζ, χώροι στάθμευσης
1 σε πάρκινγκ/κλειστό πάρκινγκ
Άλλα χαρακτηριστικά
  • Προσόψεως
Πληροφορίες τιμής
Τιμή
€ 220.000
Τιμή ανά m²
2.391 €/m²
Λεπτομέρειες κόστους
Κοινόχρηστα
Χωρίς κοινόχρηστα έξοδα
Ενεργειακή απόδοση

Κατανάλωση ενέργειας

C

Εκπομπές CO₂

Γ

Σχέδιο ακινήτου
Virtual tour
Ανακαλύψτε κάθε γωνιά του ακινήτου
+16
Πρόσθετες επιλογές

Επικοινώνησε με τον αγγελιοδότη

Ή