map icon

Σαλέ 4 δωμάτια, Alboraia - Alboraya

Alboraia - Alboraya
€ 990.000
4
265 m²
3+
Πολυτέλεια
Όχι
Μπαλκόνι
Βεράντα
Μόνο επιπλωμένη κουζίνα
Αποθήκη

Σημείωση

Τελευταία ενημέρωση: 07/04/2026
Περιγραφή

This description has been translated automatically by Google Translate and may not be accurate

κωδικός: 122142

Adosado en Venta a Solo 50 Metros del Mar Playa Patacona

Amplio adosado junto al mar . Situado al lado del Paseo Marítimo de la Playa Patacona, esta propiedad es perfecta tanto como residencia habitual como segunda vivienda.

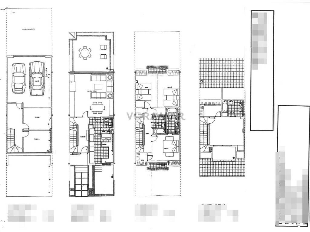
Distribución y Estancias:

Planta baja:
Al acceder a la vivienda, una agradable terraza de entrada nos da la bienvenida. Desde allí se accede a un amplio y luminoso salón comedor, un espacio abierto que se prolonga hacia una maravillosa terraza privada, ideal para disfrutar del clima mediterráneo durante todo el año. La cocina, totalmente equipada, cuenta con acceso directo a la terraza frontal, lo que aporta aún más luz y ventilación al espacio. En esta planta además un aseo.

Primera planta:
El dormitorio principal cuenta con vestidor independiente, baño privado y acceso a un balcón. Completan esta planta dos dormitorios dobles, ambos con armarios empotrados y salida a su propio balcón. Todas las estancias destacan por su luminosidad y comodidad. También en la planta encontramos un segundo baño completo.

Segunda planta (buhardilla):
Un espacio polivalente, actualmente distribuido como dormitorio con vestidor y baño completo, acompañado de un balcón Esta zona puede adaptarse como área de trabajo, estudio o sala de juegos para niños, ofreciendo total privacidad y versatilidad.

Sótano:
Cuenta con dos salas adicionales perfectas como trastero, gimnasio o zona de almacenamiento, además de armarios empotrados bajo la escalera.

Garaje privado:
Amplio espacio para dos vehículos, con entrada independiente directa a la vivienda, lo que aporta un plus de comodidad y seguridad.

Ubicación Inmejorable: A tan solo 50 metros de la playa, en una zona residencial tranquila pero perfectamente conectada, con colegios, institutos, supermercados, farmacias, restaurantes y parada de autobús a pocos pasos. Además, el paseo marítimo conecta directamente con la Marina de Valencia, ideal para quienes disfrutan de largos paseos frente al mar.
Χαρακτηριστικά
Τύπος
Σαλέ
Συμβόλαιο
Πώληση
Ανελκυστήρας
Όχι
Εμβαδόν
265 m²
Δωμάτια
4
Υπνοδωμάτια
4
Μπάνια
3+
Επιπλωμένο
Μόνο επιπλωμένη κουζίνα
Μπαλκόνι
Ναι
Βεράντα
Ναι
Κλιματισμός
Αυτόνομη, κρύο
Άλλα χαρακτηριστικά
  • Εντοιχισμένη ντουλάπα
  • Προσόψεως
Πληροφορίες τιμής
Τιμή
€ 990.000
Τιμή ανά m²
3.736 €/m²
Ενεργειακή απόδοση

Κατανάλωση ενέργειας

115 kWh/m² έτοςD

Εκπομπές CO₂

21 kg CO₂/m² έτοςΔ

Ανακαλύψτε κάθε γωνιά του ακινήτου
+42
Πρόσθετες επιλογές

Επικοινώνησε με τον αγγελιοδότη

Ή