map icon

Δυάρι άριστη κατάσταση, πρώτος όροφος, Can Palet, Terrassa

TerrassaCan Palet
€ 163.000
2
67 m²
1
1
Ναι

Σημείωση

Τελευταία ενημέρωση: 16/03/2026
Περιγραφή

κωδικός: 2101/21010016/31

ESTUPENDA VIVIENDA EN VENTA, SIN COMISIONES DE AGENCIA

Excelente vivienda de dos dormitorios y un baño. Se encuentra en la planta 1 de un edificio residencial. Dispone de ascensor. Situado en Sud en el municipio de Terrassa.

La vivienda se distribuye en dos dormitorios, salón-comedor, cocina independiente y un baño. Cuenta con cocina amueblada y equipada con muebles altos y bajos, vitrocerámica, horno y campana extractora. Además, cuenta con ascensor.

Se encuentra ubicado en Sud, Sureste de Terrassa. Cuenta con fácil acceso a través de las principales carreteras y buenas comunicaciones por transporte público. La parada de metro más cercana es Vallparadis Universitat y se encuentra a menos de 20 minutos andando. La parada de autobús más cercana es Llac Vallparadis y se encuentra a menos de 5 minutos andando.

En su entorno existen viviendas plurifamiliares de similares características. La zona cuenta con todo tipo de servicios básicos, la farmacia más cercana se encuentra a 250 metros, la universidad más cercana se encuentra a 290 metros. Además, a menos de 500 metros también puedes encontrar 2 supermercados, un banco, una comisaría de policía.

La zona cuenta con una amplia oferta de entretenimiento con 5 parques, bares, restaurantes y comercios a pocos minutos de la vivienda.

En cuanto al transporte privado, la zona dispone de parkings privados y aparcamiento en la calle. La vivienda tiene un fácil acceso por carretera y está bien comunicado a través de la Autopista Barcelona-Terrassa, Carretera de Terrassa y la Avinguda del Valles.

Estado de la vivienda: vacante.

La vivienda se comercializa mediante colaboradores que no cobran comisión de agencia, ofreciéndote un proceso directo, claro y sin costes añadidos.
Χαρακτηριστικά
Τύπος
Διαμέρισμα
Συμβόλαιο
Πώληση
Όροφος
1 όροφος
Ανελκυστήρας
Ναι
Εμβαδόν
67 m²
Δωμάτια
2
Υπνοδωμάτια
2
Μπάνια
1
Άλλα χαρακτηριστικά
  • Προσόψεως
Πληροφορίες τιμής
Τιμή
€ 163.000
Τιμή ανά m²
2.433 €/m²
Λεπτομέρειες κόστους
Κοινόχρηστα
Χωρίς κοινόχρηστα έξοδα
Ενεργειακή απόδοση

Κατανάλωση ενέργειας

D

Εκπομπές CO₂

Δ

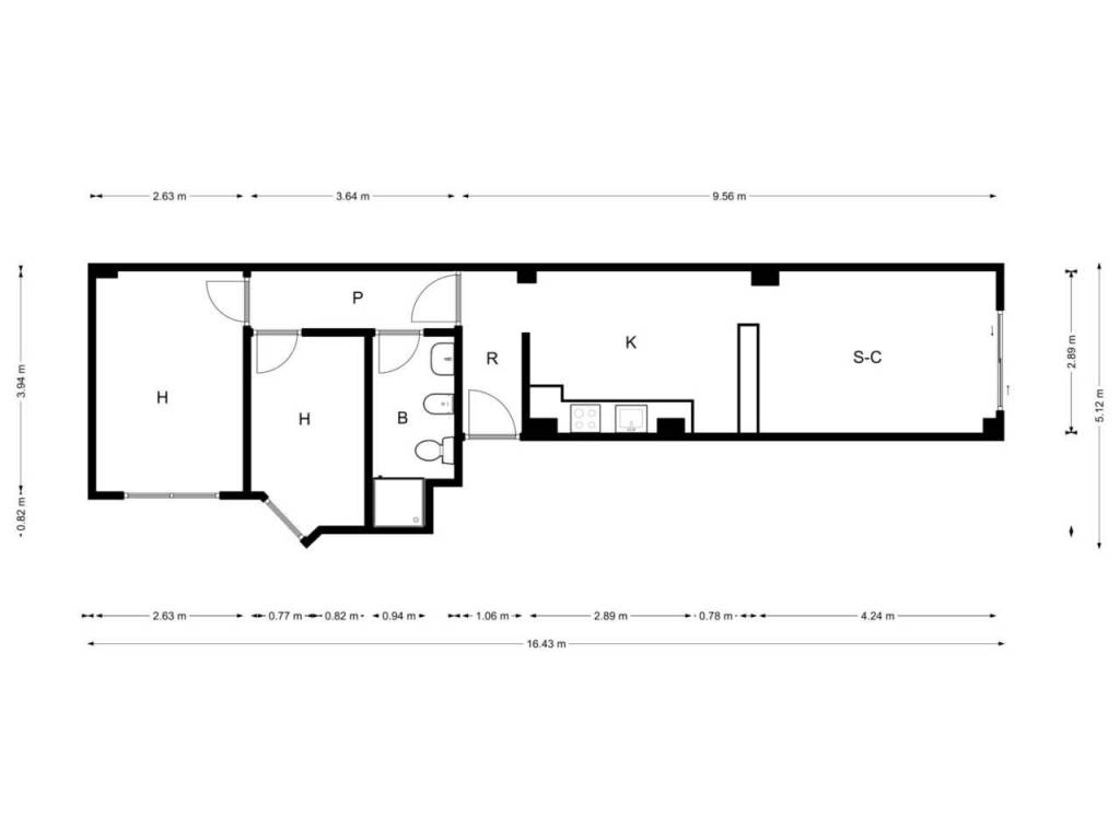
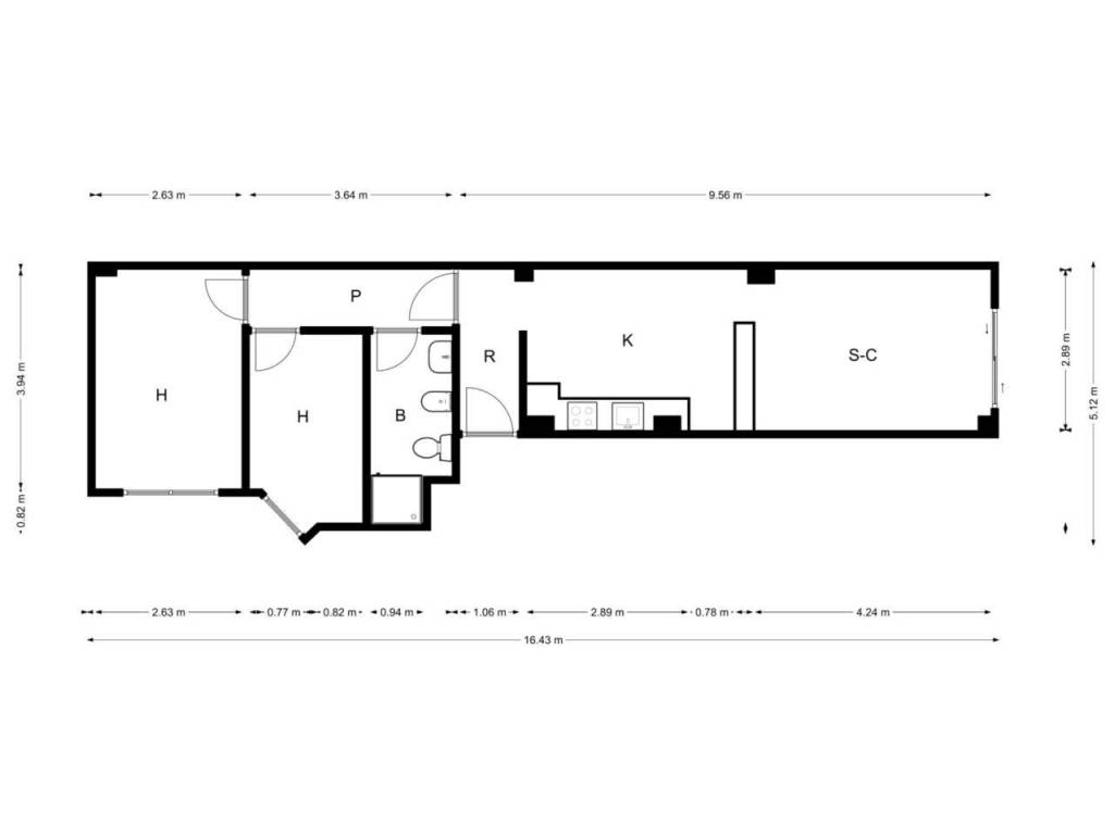
Σχέδιο ακινήτου
Virtual tour
Ανακαλύψτε κάθε γωνιά του ακινήτου
+22
Πρόσθετες επιλογές

Επικοινώνησε με τον αγγελιοδότη

Ή