Αγροτεμάχιο προς Πώληση

€ 225.000
116 m²

Σημείωση

Τελευταία ενημέρωση: 04/04/2026
Περιγραφή

κωδικός: 9902

Oportunidad de inversión y autopromoción en Adeje, uno de los municipios con mayor demanda residencial del sur de Tenerife. Se ofrece suelo urbano situado en zona residencial consolidada, dentro de una parte de la parcelación de Adeje, con entorno tranquilo y todos los servicios cercanos.
La parcela cuenta con una superficie de 116 m y se vende con proyecto arquitectónico incluido en el precio. La propiedad dispone de licencia concedida y cimentación ya realizada, lo que supone un importante avance técnico y administrativo para retomar el desarrollo.
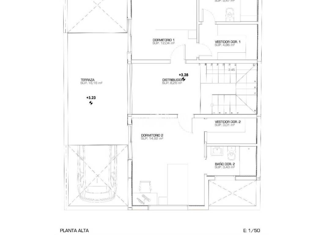
Según el proyecto, se contempla una vivienda unifamiliar de 145,74 m de superficie total construida computable, distribuida en dos plantas, con una concepción moderna, funcional y muy bien adaptada al uso residencial.
Distribución proyectada:
  Planta baja 65 m construidos:
Espacioso salón con cocina integrada, con acceso directo a un espacio exterior de jardín, aseo, zona de almacén y plaza de parking privada para un vehículo.
  Planta primera 70 m construidos:
Dos dormitorios, dos baños completos y una terraza, aportando luminosidad y un agradable espacio exterior.
En la parcela ya se han ejecutado los trabajos de desmonte y cimentación, lo que representa un ahorro significativo en tiempo y costes y facilita la reactivación de la obra conforme al proyecto existente.
Ubicada en una zona residencial de Adeje, con excelente proyección y alta demanda tanto para vivienda habitual como para inversión, esta propiedad ofrece una base sólida para desarrollar una vivienda unifamiliar en uno de los municipios más valorados del sur de la isla.
Referencia Asten Realty 9902.
Χαρακτηριστικά
Συμβόλαιο
Πώληση
Τύπος
Αγροτεμάχιο
Εμβαδόν
116 m²
Διαθεσιμότητα
Διαθέσιμο
Πληροφορίες τιμής
Τιμή
€ 225.000
Τιμή ανά m²
1.940 €/m²
Ανακαλύψτε κάθε γωνιά του ακινήτου
+20
Πρόσθετες επιλογές

Επικοινώνησε με τον αγγελιοδότη

Ή