Appartement 1 chambre Barrio Requejada 1, Polanco

€ 129 000
1
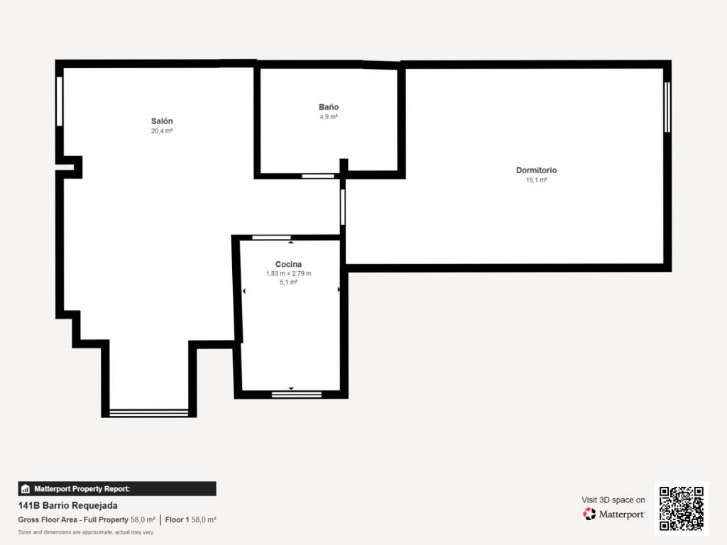
69 m²
1
3
Oui

Remarque

Annonce mise à jour le 19/04/2026
Description

référence: V2280

Se vende encantador piso de una habitación ubicado en Requejada, en una zona tranquila y bien comunicada. Esta propiedad ofrece una superficie útil de 42 metros cuadrados y un total de 69 metros construidos, distribuidos de manera eficiente para maximizar el confort y la funcionalidad. Ubicado en la planta tercera de un edificio que data del año 2005, esta moderna vivienda cuenta con todas las comodidades necesarias para una vida cómoda.El inmueble dispone de un salón luminoso y acogedor que se integra armoniosamente con el comedor, creando un espacio ideal para relajarse o recibir visitas. La habitación principal es espaciosa y está diseñada para ofrecer descanso y privacidad. En cuanto al baño, este ha sido diseñado con materiales de alta calidad, asegurando durabilidad y estilo.La cocina está completamente equipada y cuenta con todo lo necesario para quienes disfrutan del arte culinario. Tanto el salón como la cocina reciben abundante luz natural, lo cual crea un ambiente cálido y acogedor durante todo el día.El edificio en el que se encuentra la vivienda dispone de ascensor, lo cual facilita el acceso a todas las plantas y añade un nivel extra de comodidad, especialmente útil para personas mayores o con movilidad reducida. Además, esta propiedad incluye una plaza de garaje, garantizando un lugar seguro y conveniente para estacionar su vehículo y liberándolo de la preocupación de buscar aparcamiento.La ubicación de este piso es uno de sus puntos fuertes. Situado en Requejada, goza de una excelente conectividad gracias a la proximidad de servicios de transporte público. A pocos minutos caminando encontrará paradas de tren y autobuses, facilitando el desplazamiento hacia diversas áreas de la región. Esta ventaja convierte al inmueble en una opción ideal tanto para personas que trabajan en el centro urbano como para aquellos que deseen explorar diferentes zonas durante su tiempo libre.La zona circundante ofrece una mezcla perfecta entre tranquilidad y accesibilidad. Podrá disfrutar de la belleza natural y la serenidad del entorno mientras permanece a corta distancia de centros comerciales, y otros puntos de interés. Esto garantiza que todos los servicios esenciales estén al alcance, sin renunciar a la buena comunicación con la autovía.La propiedad representa una oportunidad única, tanto para individuos que buscan su primera vivienda, como para aquellos que desean invertir en un inmueble de calidad con alto potencial de revalorización. Un lugar que invita a ser visitado para apreciar en persona todas sus ventajas y detalles. No pierda la oportunidad de conocer este fabuloso piso y descubrir si puede convertirse en su próximo hogar. Contáctenos para agendar una visita y comprobar por qué esta propiedad es una excelente opción en el mercado actual.No deje pasar esta oportunidad única en Requejada!
Caractéristiques
Typologie
Appartement
Transaction
Vente
Étage
3 étage
Ascenseur
Oui
Superficie
69 m²
Chambres/pièces
1
Chambres
1
Bains/douches
1
Informations sur les prix
Prix
€ 129 000
Prix au m²
1 870 €/m²
Efficacité énergétique

Consommation d'énergie

F

Émissions de CO₂

Non spécifié

Découvrez chaque recoin de la propriété
+23
Options additionnelles

Contacter l'annonceur

Ou