Terrain constructible en Vente

€ 189 000
238 m²

Remarque

Annonce mise à jour le 13/01/2026
Description

This description has been translated automatically by Google Translate and may not be accurate

référence: 002063

TERRAIN - PARCELLE Urbaine - TERRAIN à VENDRE à LA FLORIDA de SANTA PERPÈTUA DE MOGODA - Terrain de Football (Vallès Oriental - BCN):
Vente d'une parcelle urbaine plate de 238 m² pour une maison résidentielle individuelle de maximum 285,60 m² sur 3 étages (RDC + 2ÉT).
À 4 minutes - 1,5 kilomètres de la mairie, à 750 m des gares R8 et R3. À côté du terrain de football, des espaces verts et du C.A.P. Proche de tous les services et commerces.
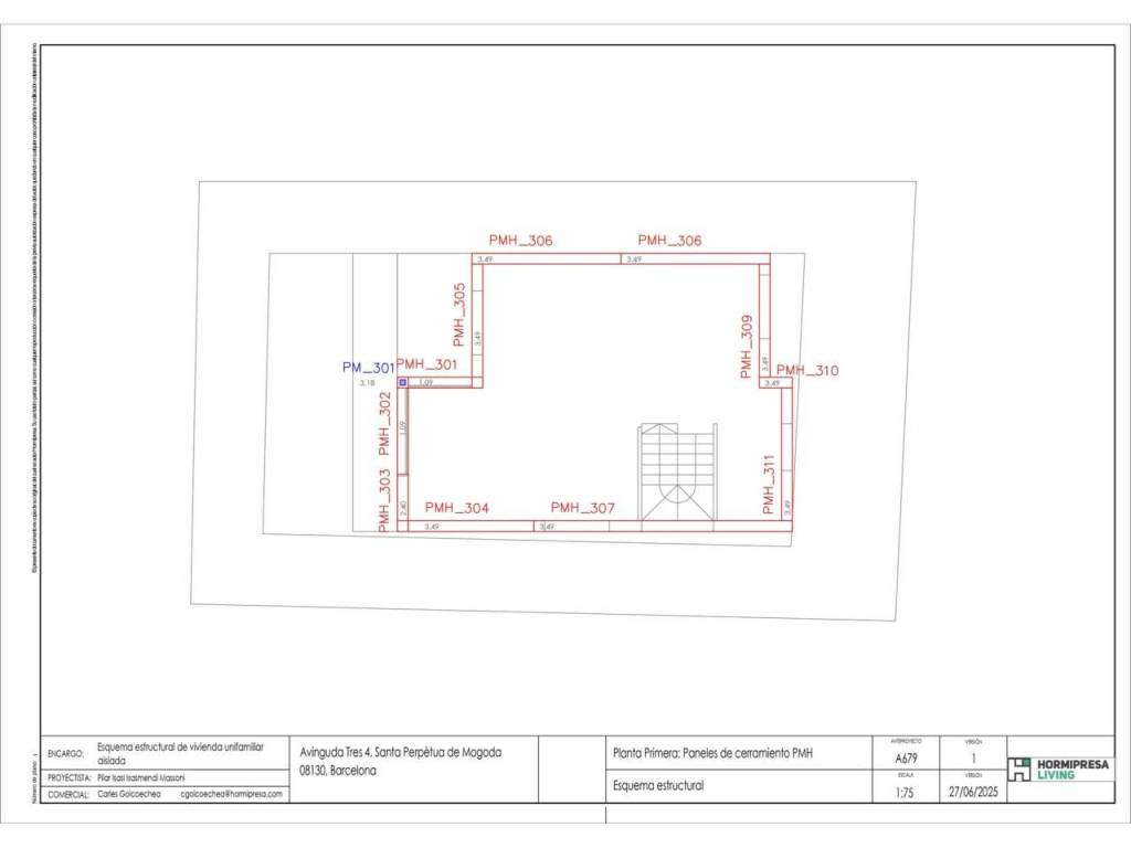
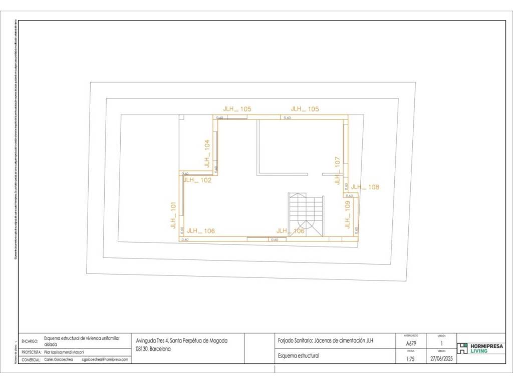
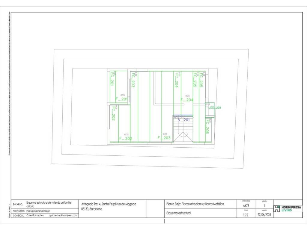
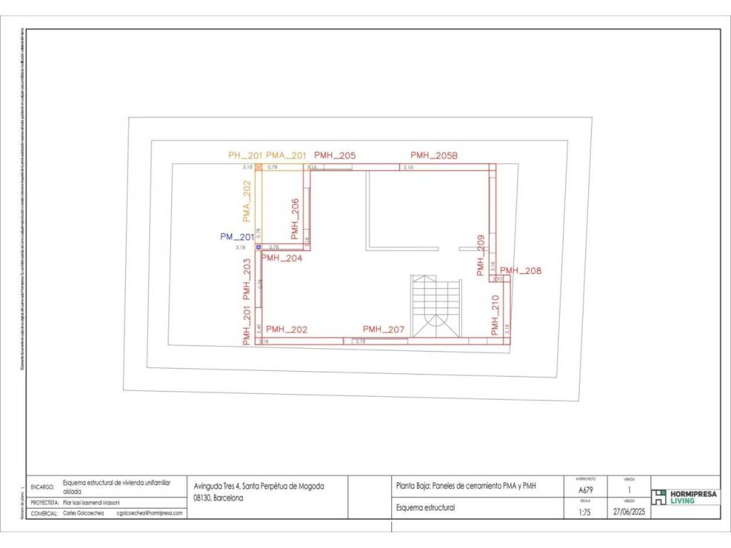
• Superficie cadastrale de la parcelle sur l'Avinguda Tres, 4: 238 m². Forme rectangulaire. Façade orientée nord-est de 12,5 m. Côté gauche 20 m. Côté droit 20 m. Profondeur de 12,5 m. Parcelle plate. Hauteur de 58 m au-dessus du niveau de la mer. Pour une maison individuelle isolée de RDC + 2ÉT. Classification urbaine 2.3a. Parcelle minimale 200 m². Coefficient de constructibilité nette 0,75 m²/t.m. Pourcentage maximum d'occupation de la parcelle 40% (95,20 m² par étage). Hauteur de construction maximale 10,30 m. Recul par rapport à la voie : 3 m. Reste : 2 m. Approvisionnements en eau et électricité sur la parcelle. Il dispose de plans préliminaires.
Ne manquez pas l'opportunité d'acquérir ce terrain avec un grand potentiel pour développer un projet unique.

Caractéristiques
Transaction
Vente
Typologie
Terrain constructible
Superficie
238 m²
Autres caractéristiques
  • Clôturé
  • Raccordement des eaux usées
  • Éclairage public
Informations sur les prix
Prix
€ 189 000
Prix au m²
794 €/m²
Plan
Découvrez chaque recoin de la propriété
+20
Options additionnelles

Contacter l'annonceur

Ou