map icon

Terrain constructible en Vente

Sant Pere de Ribes
€ 675 000
990 m²

Remarque

Annonce mise à jour le 15/01/2026
Description

référence: 39040

Exclusivo terreno urbano plano de 990m2 en Puigmoltó, Sant Pere de Ribes, a lado de Sitges.

Descubre esta última oportunidad disponible en la prestigiosa zona de Puigmoltó, dentro del término municipal de Sant Pere de Ribes y a tan solo 5 minutos del encantador pueblo costero de Sitges.

Se trata de una parcela urbana única de 990m², en una nueva urbanización consolidada. Es la única disponible de las cuatro parcelas originales, ya que las otras han sido vendidas. La propiedad se compone de:

- 659 m² de terreno urbano edificable
- 331 m² de terreno rural en usufructo vitalicio, este superficie se extiende como anexo del terreno urbano y es ideal como zona verde privada o jardín adicional

La parcela, completamente llana, ofrece unas condiciones inmejorables para construir la casa de tus sueños, con máxima privacidad, ya que solo limita con otras dos parcelas (nº2 y nº4). Está identificada como Parcela nº3.

Normativa Urbanística y Posibilidades de Construcción - Según la normativa vigente:
- Ocupación máxima en planta baja: 30% (aprox. 198m²)
- Superficie total edificable: hasta 396m² en dos plantas + construcciones auxiliares

Entorno Natural y Servicios - Desde la parte norte de la parcela se disfrutan vistas despejadas al Parque Natural del Garraf, lo que garantiza luz natural y un entorno privilegiado todo el año. La entrada, orientada al sur, está protegida por un elegante muro de piedra natural, que aporta carácter y privacidad.

La urbanización cuenta con infraestructura nueva, incluyendo conexiones de agua, electricidad, un parque infantil de 2.478 m2 y una zona de reunión comunitaria, todo perfectamente integrado en el entorno.

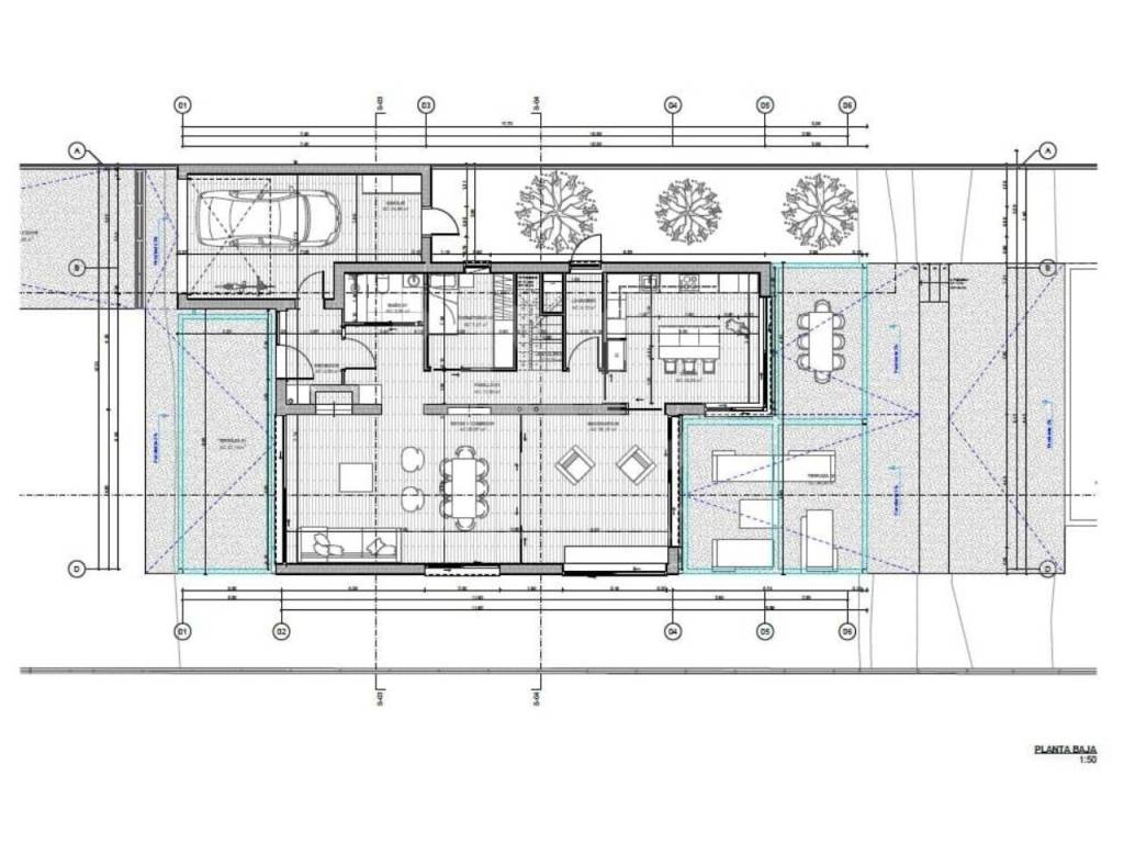
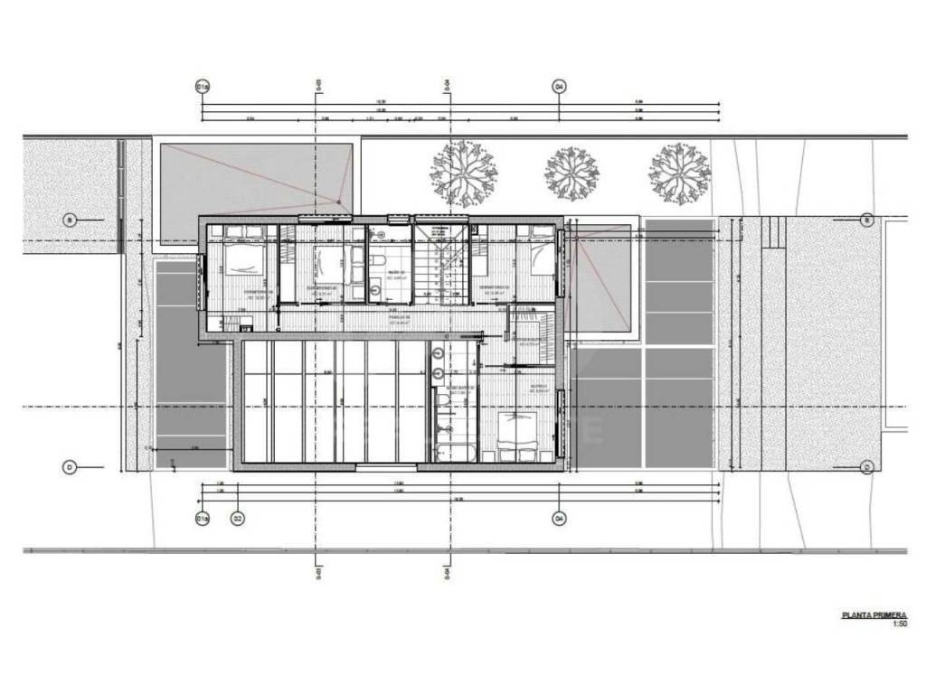
Proyecto Arquitectónico Incluido - El precio incluye un proyecto arquitectónico ya visado por el Colegio de Arquitectos, que contempla una espectacular vivienda unifamiliar de 326m² distribuidos en dos plantas. Este proyecto está listo para ejecutarse, pero si lo deseas, puede adaptarse o rediseñarse completamente según tus gustos y necesidades.

Además, disponemos de un presupuesto actualizado para la construcción, elaborado por una empresa constructora local de reconocido prestigio en Sitges. Podemos facilitar toda esta información a interesados.

Una Inversión Excepcional - Si buscas un lugar exclusivo, tranquilo y rodeado de naturaleza, sin renunciar a la cercanía de Sitges y sus servicios, esta parcela es para ti.

Contáctanos para más detalles o para concertar una visita.
Caractéristiques
Transaction
Vente
Typologie
Terrain constructible
Superficie
990 m²
Informations sur les prix
Prix
€ 675 000
Prix au m²
682 €/m²
Découvrez chaque recoin de la propriété
+26
Options additionnelles

Contacter l'annonceur

Ou