Magasin - Local commercial en Vente

€ 485 000
181 m²
2

Remarque

Annonce mise à jour le 20/03/2026
Description

référence: 0015-07451

Exclusivo local con uso de oficina en Calle Padre Claret – Madrid

RE/MAX Rosales presenta este local comercial con uso de oficina, situado en la Calle Padre Claret, en una de las zonas profesionales y residenciales más consolidadas de Madrid.

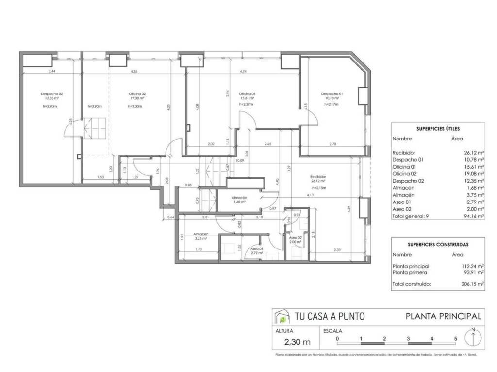
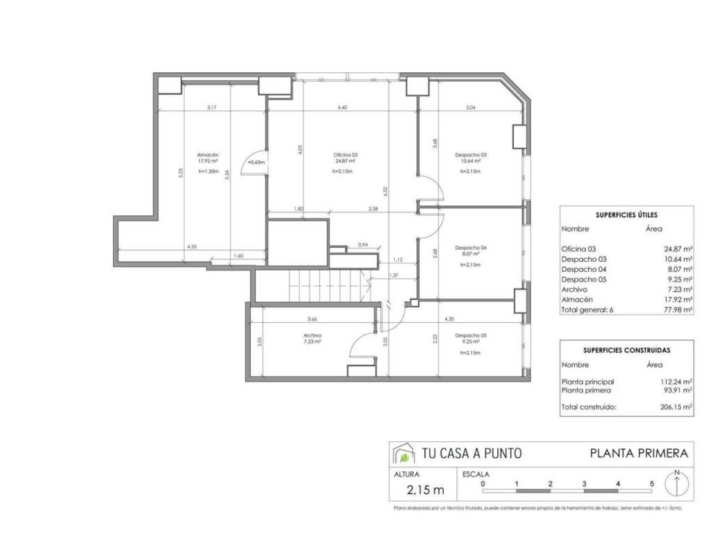
La propiedad dispone de una superficie total de 181 m², distribuida en dos plantas funcionales:

Planta calle de 95 m², con acceso directo desde la calle, ideal para recepción, atención al cliente o zona representativa.

Planta entreplanta de 78 m², destinada a área de trabajo y despachos.

Actualmente el espacio se organiza en 8 despachos, 3 almacenes, 2 aseos, amplio recibidor y archivo, ofreciendo una distribución óptima para actividades profesionales. El local es completamente exterior, con buena entrada de luz natural, y se encuentra para reformar, lo que permite personalizarlo y adaptarlo a un proyecto empresarial a medida.

Entorno y comunicaciones
Ubicado en el barrio de Prosperidad, una zona estratégica caracterizada por su actividad empresarial y excelente calidad de vida. Rodeado de servicios, comercios, colegios, centros médicos y oficinas, con magníficas comunicaciones mediante metro y autobuses, y rápido acceso a las principales arterias de la ciudad.

Una propiedad con gran potencial para despachos profesionales, clínicas, centros de formación, coworking o sede corporativa, en una ubicación que aporta valor y proyección a cualquier negocio.

No dude en llamarme para visitarlo. Oportunidad!
Caractéristiques
Transaction
Vente
Superficie
181 m²
Chambres/pièces
2 bains/douches
Informations sur les prix
Prix
€ 485 000
Prix au m²
2 680 €/m²
Détails des coûts
Charges de copropriété
Aucun frais de copropriété
Efficacité énergétique

Consommation d'énergie

184 kWh/m² annéeC

Émissions de CO₂

Non spécifié

Découvrez chaque recoin de la propriété
+28
Options additionnelles

Contacter l'annonceur

Ou