Trilocale primo piano, Centre, Terrassa

€ 230.000
3
133 m²
2
1
Balcone
Terrazzo

Nota

Annuncio aggiornato il 26/03/2026
Descrizione

riferimento: V0640/5310

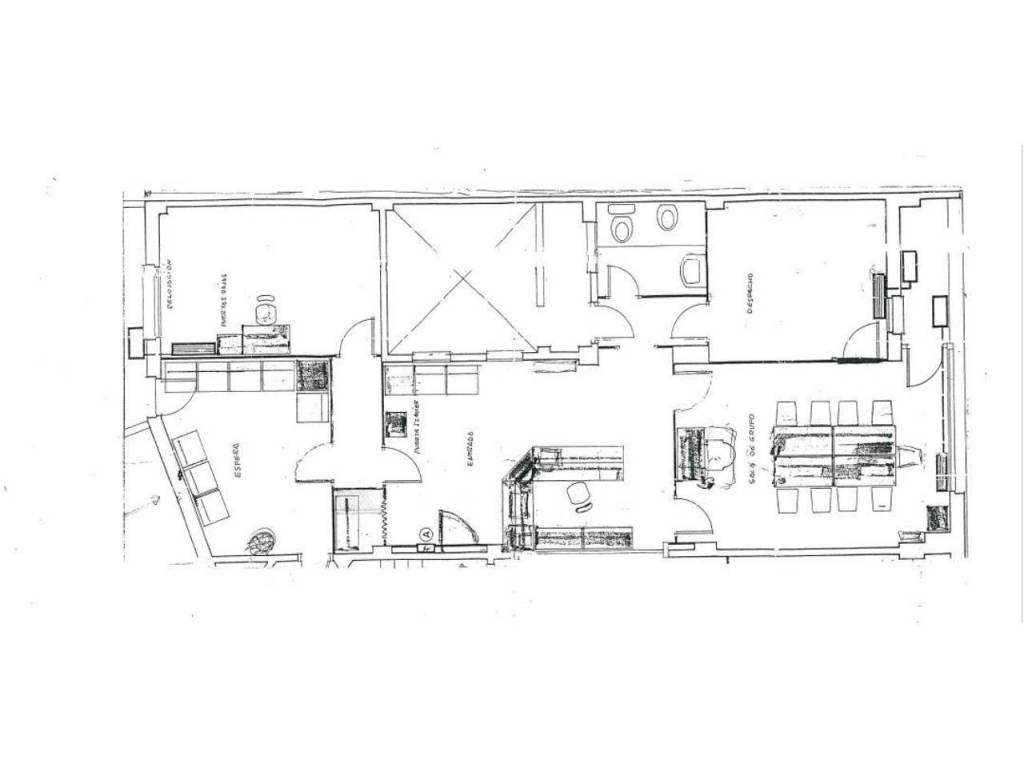
MB Immobles comercialitza un pis situat a la Rambla d’Ègara, al centre de Terrassa, actualment destinat a despatx professional, Es tracta d’un immoble molt lluminós, ubicat en una primera planta ( 2ª planta real ) amb ascensor i amb una superfície de 114 m2 útils.

L’habitatge disposa d’una distribució àmplia i funcional, amb tres habitacions, dues d’elles dobles i una individual gran. Compta amb un bany complet i un lavabo, amb possibilitat de configurar dos banys complets segons projecte de reforma.

Disposa de balcó, terrassa exterior, i zona de safareig amb pati de llums, aportant ventilació i llum natural als espais interiors.

L’immoble requereix reforma integral, fet que permet adaptar completament la distribució i els acabats a les necessitats del comprador, a partir d'un ampli espai amb diferents possibilitats.

La ubicació és un dels principals valors de la propietat, ja que es troba en ple centre de Terrassa, envoltat de comerços, serveis, restauració, centres mèdics, escoles, equipaments i transport públic, amb excel·lents connexions tant internes com amb la resta de l’àrea metropolitana.

Per a més informació o per concertar una visita, contacta amb MB Immobles.
Caratteristiche
Tipologia
Appartamento
Contratto
Vendita
Piano
1 piano
Ascensore
Superficie
133 m²
Locali
3
Camere da letto
3
Bagni
2
Balcone
Terrazzo
Informazioni sul prezzo
Prezzo
€ 230.000
Prezzo al m²
1.729 €/m²
Dettaglio dei costi
Spese condominio
Nessuna spesa condominiale
Efficienza energetica

Emissioni di CO₂

Non indicato

Scopri ogni angolo dell'immobile
+38
Opzioni aggiuntive

Contatta l'inserzionista

Oppure