Terreno edificabile in Vendita

€ 165.000

Nota

Annuncio aggiornato il 24/02/2026
Descrizione

riferimento: 106624296

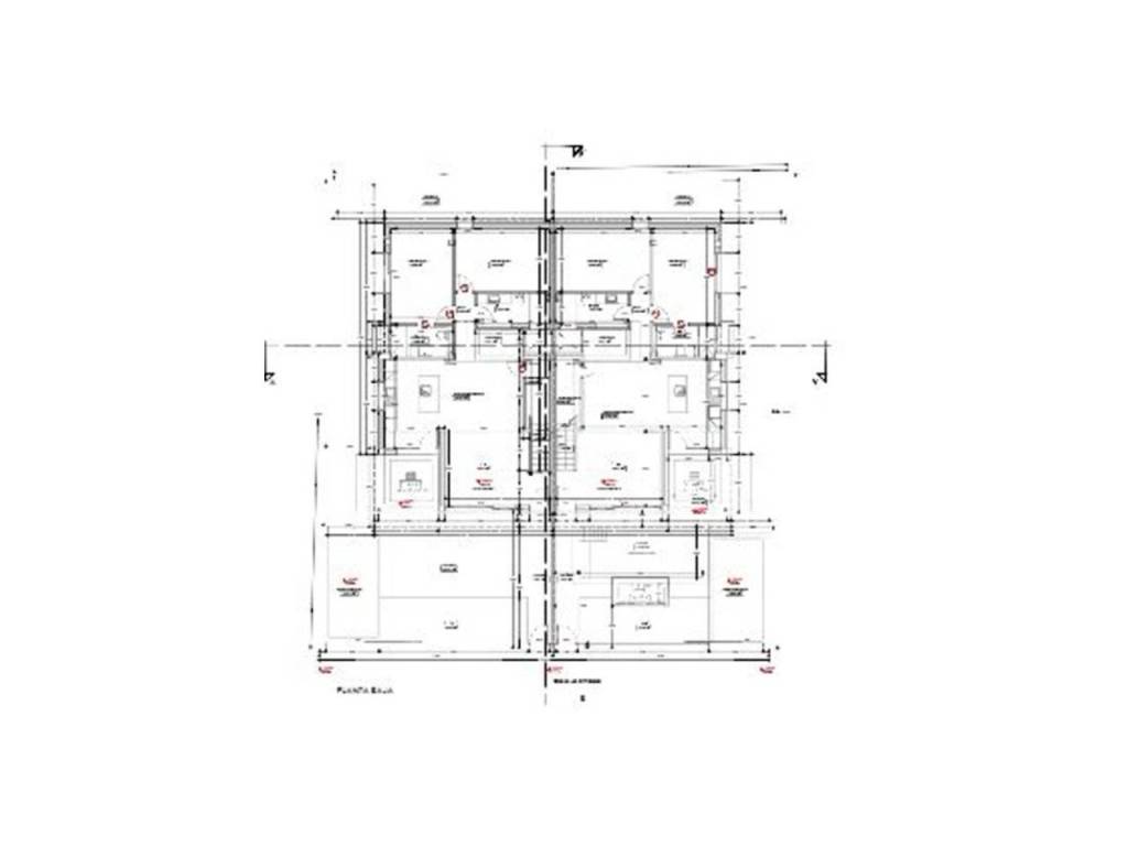
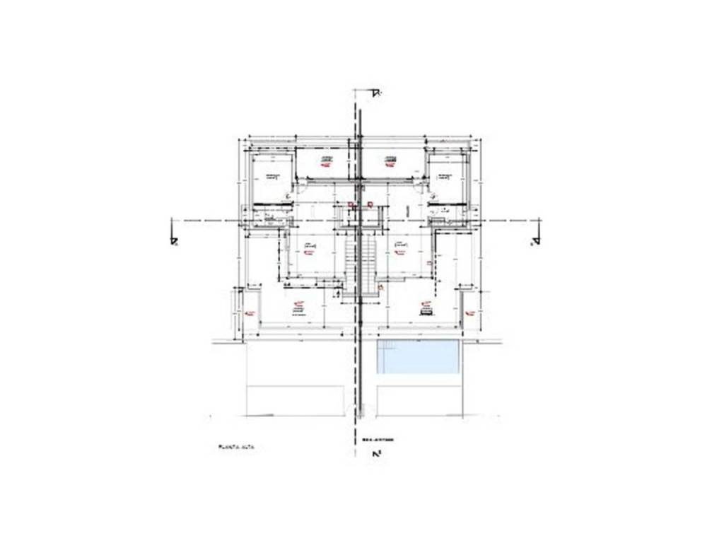
¡Oportunidad única en el corazón de Güime! Presentamos un terreno de 495 m² con un proyecto y licencia aprobada para construir dos dúplex adosados. Este solar urbano ofrece una distribución versátil, ideal para convertirlo en cuatro apartamentos independientes.

Cada dúplex cuenta con dos plantas: en la planta baja tiene dos dormitorios, dos baños y un espacioso salón-comedor-cocina; en la planta alta tiene un dormitorio adicional, baño y un acogedor estar con zona de estudio. El exterior está diseñado para disfrutar al máximo, con zonas ajardinadas, terrazas, pérgolas y una piscina que invitan al relax.

Con una superficie total edificada de 363 m², este terreno es perfecto para aquellos que buscan invertir en un proyecto residencial en un entorno tranquilo pero céntrico. No dejes pasar esta oportunidad de crear un espacio único en una ubicación privilegiada. ¡Contáctanos para más detalles!
Caratteristiche
Contratto
Vendita
Tipologia
Terreno edificabile
Informazioni sul prezzo
Prezzo
€ 165.000
Scopri ogni angolo dell'immobile
+7
Opzioni aggiuntive

Contatta l'inserzionista

Oppure