Actividade comercial para Renda

€ 2.500/mês
Sim
800 m²
2
r/c

Nota

Anúncio atualizado em 31/01/2026
Descrição

referência: EK-98496209

Bajo comercial de 800 metros en bajo con esquina a dos calles con muchísimo tránsito de tráfico rodado(escaparate a carretera nacional de Alicante(frente la tienda de muebles Mueblería de Ángel)en Cobatillas(pedanía vecina de Santomera, El Esparragal y Cabezo de Torres). Dos puertas de entrada/salida al local una para cada calle, (una de cristal automática, con persiana de seguridad y la otra automática tipo-tamaño cochera).
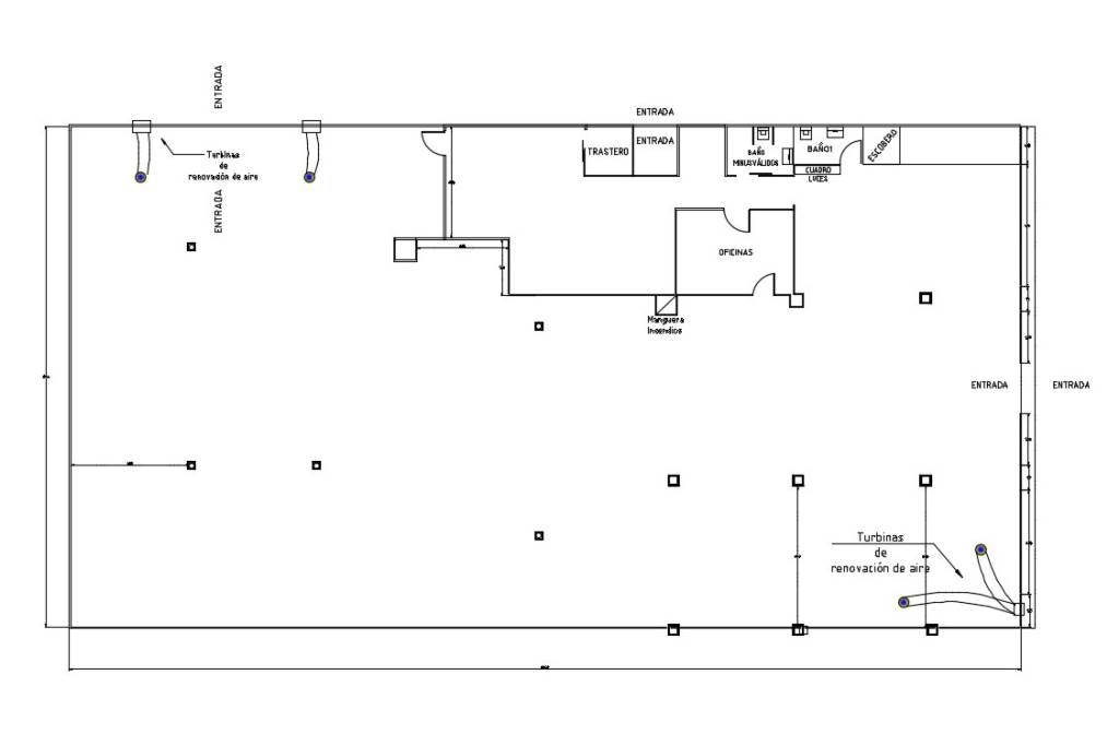
Local pegado a Maximo-moto (MURCIA). El bajo tiene 18 metros de largo por 20 de fondo y ambos lados dan a sendas carreteras haciendo esquina a la carretera nacional de Alicante y calle residencial. Alto tráfico todo el día garantizado ya que está en primera linea de Carretera Nacional Alicante/Murcia. Dos baños(uno para personas con movilidad reducida conforme a ley). Suelo de tarima y tres habitaciones aparte del espacio abierto(para oficinas, almacén, etc.. . Con turbina de renovacion de aire conforme a ley para cambio de licencia de actividad sin problemas ni costes adicionales. Listo para entrar. Parking privado del mismo local y en la puerta principal con capacidad para 22 coches además de alrededor del edificio en cualquier calle(asfaltada). Pegado a las dos rotondas del nucleo Cobatillas/Esparragal. A tan solo 5 minutos de los centros comerciales Nueva Condomina/Thader. A cinco minutos(andando) de Urbanización Montepinar, Villa de la Plata y Cantalares. Ideal para tiendas, comercios, ocio-recreo, grandes oficinas, etc.. . Escaparates con grandes cristaleras en esquina dos carreteras. Negocios cercanos como Lidl, Hiper-Asia, Mueblería de Ángel, Maximo-moto, Lúzete lámparas, etc...
Características
Contrato
Renda
Tipologia
Actividade comercial | com parede
Superfície
800 m²
Quartos
2 casas de banho - um ou mais adequado para pessoas com deficiência, entrada dupla
Andar
Rés-do-chão, com acesso a deficientes
Andares do Edifício
1
Altura tectos
280 m
Anos de actividade
25 anos
Equipamento para a actividade
Incluída
Montras
8 montras para o passeio
Estacionamento, lugares de estacionamento
22 em estacionamento compartilhado
Disponibilidade
Livre
Outras características
  • Com fio
  • Entrada de automóveis
  • Luzes de emergência
  • Piso flutuante
  • Posição de canto
  • Válvulas automáticas
Detalhe da superfície

Loja - Actividade comercial

Andar
Rés-do-chão
Superfície
800,0 m²
Coeficiente
100%
Tipo de superfície
Principal
Sup comercial
800,0 m²
Informações de preço
Preço
€ 2.500/mês
Preço por m²
3 €/m²
Detalhes de custos
Despesas de condomínio
Sem taxas de condomínio
Fiança
Não indicado
Eficiência energética

Emissões de CO₂

Não indicado

Planta
Anunciante
user male

Privado

Telefone

Opções adicionais

Contactar o anunciante

user male

Privado

Telefone