map icon

Двухкомнатная квартира новое, нулевой этаж, La Cuesta-Finca España-Los Valles, San Cristóbal de La Laguna

San Cristóbal de La Laguna
€ 246 000
2
75 m²
1
T
Да
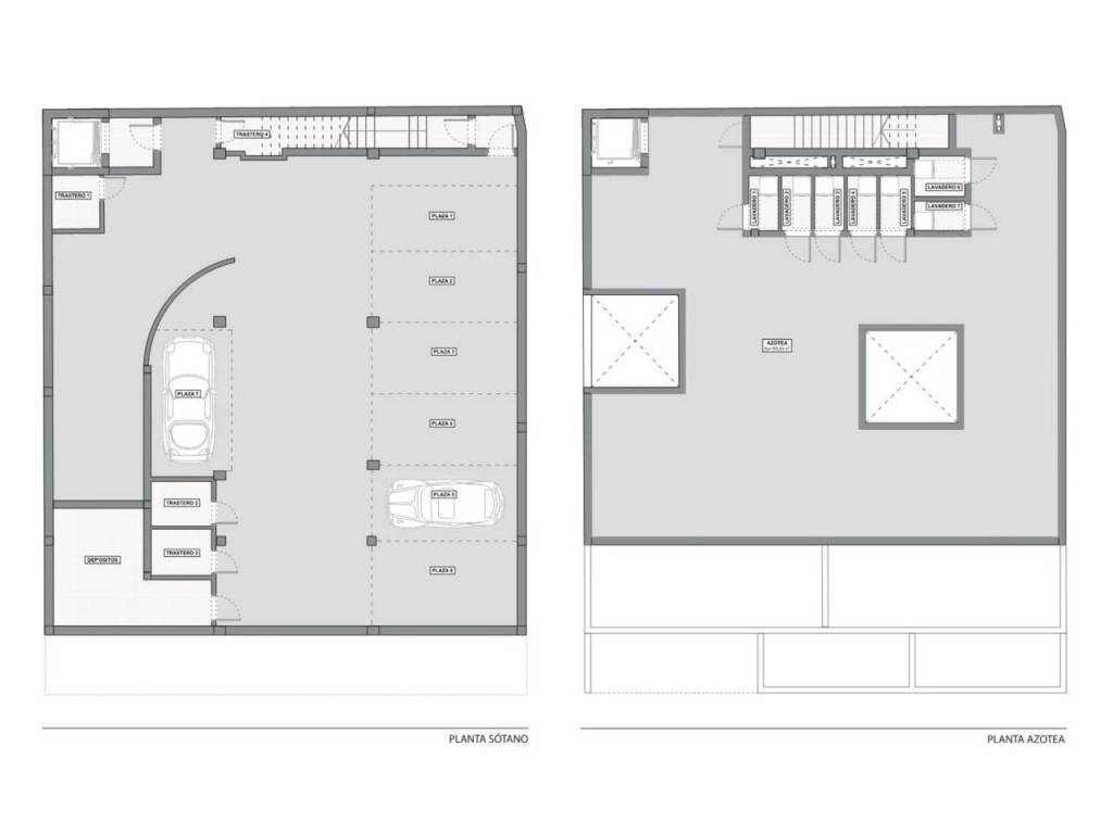
Терраса
Погреб

Пометка

Объявление обновлено 10.04.2026
Описание

ID: OFFER-20

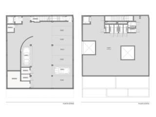
Descubre esta exclusiva promoción de obra nueva en Finca España, La Laguna, ubicada a pocos metros de la avenida principal y rodeada de todos los servicios esenciales como farmacias, supermercados y centros de salud.El residencial está compuesto por solo siete viviendas, lo que garantiza un ambiente tranquilo y acogedor. La promoción ofrece diversas tipologías para adaptarse a diferentes necesidades, con distribuciones modernas y funcionales.Las viviendas cuentan con dormitorios equipados con armarios empotrados, proporcionando comodidad y óptimo aprovechamiento del espacio. Algunas unidades disponen de terraza, ideales para disfrutar del aire libre, mientras que otras ofrecen jardín privado, perfecto para quienes buscan un espacio exterior más amplio.Además, todas las viviendas incluyen lavadero, aportando un extra de practicidad en el día a día. Existe la opción de adquirir plaza de garaje, añadiendo comodidad y seguridad.Una oportunidad única para vivir en una zona bien comunicada, con todos los servicios al alcance y en un entorno residencial consolidado
Характеристики
Типология
Квартира
Договор
Продажа
Этаж
Нулевой этаж
Лифт
Да
Площадь
75 m²
Помещения
2
Спальни
2
Ванные
1
Терраса
Да
Гараж, машиноместа
1 в частный гараж/парковка
Отопление
Централизованное
Другие характеристики
  • Встроенный шкаф
Информация о ценах
Цена
€ 246 000
Цена за м²
3 280 €/m²
Подробности о расходах
Плата за кондоминиум
Никаких кондоминиальных расходов
Энергоэффективность

Выбросы CO₂

Неуказано

Откройте для себя каждый уголок объекта недвижимости
+5
Доп. опции

Свяжитесь с рекламодателем

Или