map icon

Двухкомнатная квартира 81 m², Zona Encamp, Encamp

Encamp
€ 450 000
2
81 m²
2
Элитная
Да

Пометка

Объявление обновлено 05.04.2026
Описание

This description has been translated automatically by Google Translate and may not be accurate

ID: AND63723

Lucas Fox presents the new build Development Ajustant 7, an exclusive residential complex with apartments for sale in Els Cortals d'Encamp, in a privileged natural setting in the Andorran mountains.

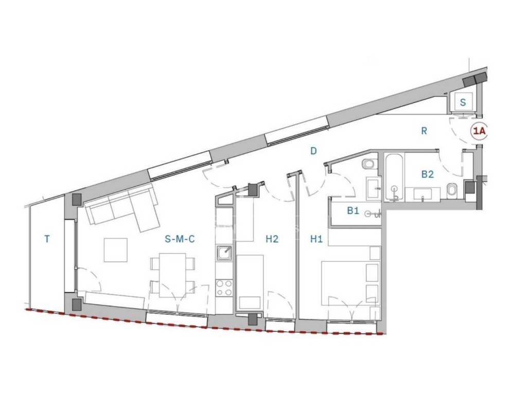
This 81 m² apartment boasts a space-maximizing design with an open-plan layout that receives plenty of natural light and pleasant views of the surrounding area. The day area houses a spacious living-dining room with an open-plan kitchen and access to a 5 m² terrace. The night area offers a bedroom with its own private bathroom, a single bedroom , and a bathroom to serve the entire property.

The property boasts high-quality finishes, including high-strength ceramic flooring, a three-point, anti-crowbar security access door, tilt-and-turn windows, an concierge , and recessed lighting.

The kitchen comes fully equipped with high-quality wall and base cabinets, a porcelain countertop, a stainless steel sink, chrome mixer taps, and appliances: a ceramic hob, extractor hood with filters, and an oven. The bathroom also features high-quality, modern design, including a wall-hung toilet, a thermostatic rainfall shower, and a backlit anti-steam mirror.

For complete comfort, the property includes PVC exterior carpentry with triple glazing and an air chamber, underfloor heating , and aerothermics for hot water and heating. The development also offers storage rooms and parking spaces in the basement and ground floors.

Contact us for more information about this exclusive new build development .
Характеристики
Типология
Квартира
Договор
Продажа
Лифт
Да
Площадь
81 m²
Помещения
2
Спальни
2
Ванные
2
Информация о ценах
Цена
€ 450 000
Цена за м²
5 556 €/m²
Подробности о расходах
Плата за кондоминиум
Никаких кондоминиальных расходов
Энергоэффективность

Выбросы CO₂

Неуказано

Откройте для себя каждый уголок объекта недвижимости
+18
Доп. опции

Свяжитесь с рекламодателем

Или