map icon

Пентхаус 100 m² с террасой, La Siesta-El Salado-Torreta-El Chaparral, Torrevieja

Torrevieja
€ 395 000
3
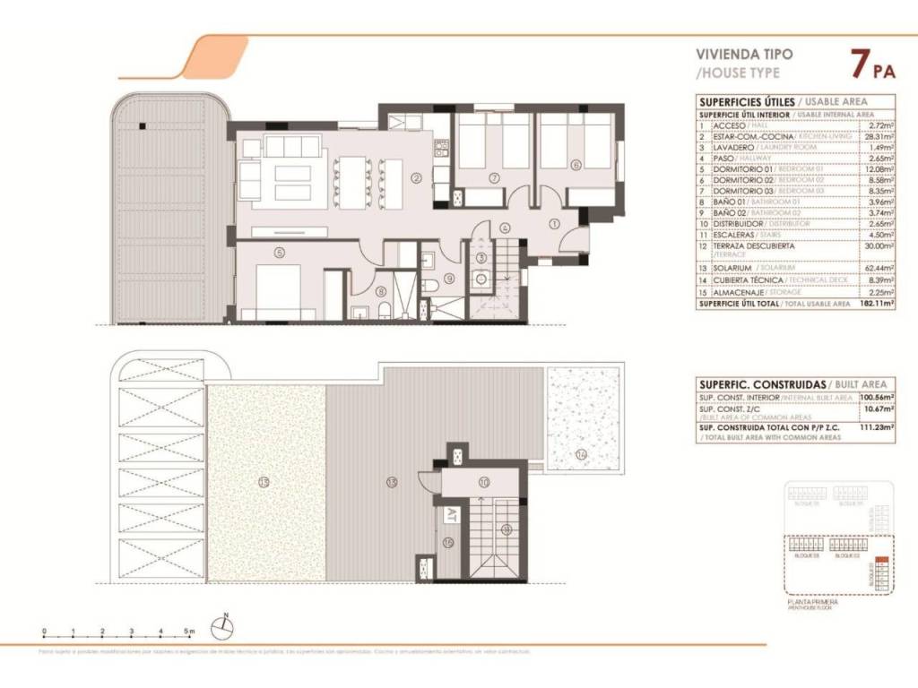
100 m²
2
3
Элитная
Да
Терраса
Погреб

Пометка

Объявление обновлено 03.04.2026
Описание

This description has been translated automatically by Google Translate and may not be accurate

ID: 10-9400/853

Modern New Build Apartments in La Hoya, Torrevieja

Contemporary Homes with Premium Amenities
Discover this exceptional new residential development in La Hoya, Torrevieja, offering modern 2 and 3 bedroom apartments with 2 bathrooms, including one ensuite, and a separate laundry room. Designed for comfort and style, the complex features low rise buildings arranged around an impressive communal area. Residents will enjoy outstanding shared amenities including adult and children swimming pools, landscaped gardens, a children playground, indoor and outdoor gyms, padel courts, bike parking and a complete spa area with sauna.

Choose the Home That Fits Your Lifestyle
The development offers several property types to suit different preferences. Ground floor apartments include a private garden ideal for outdoor living. Middle floor units feature generous terraces perfect for relaxing or dining outdoors. Penthouse apartments offer the ultimate luxury with private rooftop solariums where you can enjoy the Mediterranean climate and panoramic views.

Prime Location Between Salt Lakes and the Sea
La Hoya is a growing residential area ideally located between the natural salt lakes of La Mata and Torrevieja. This peaceful and well connected neighbourhood offers quick access to all essential amenities such as supermarkets, restaurants, health centres and cycling routes. The beautiful beaches of Torrevieja are only 3.5 km away, while the nearby Natural Park of La Mata is perfect for hiking and outdoor activities. The vibrant centre of Torrevieja, with theatres, shopping centres, cinemas, hospitals and the Aquopolis water park, is just a short drive away.

Distances to Key Points of Interest
Torrevieja Beaches: 3.5 km
Golf La Marquesa, Ciudad Quesada: 7 km
Habaneras Shopping Centre: 2 km
Alicante Airport: 40 km
Murcia Corvera Airport: 60 km

High Quality Specifications Included
Each apartment is built to excellent standards and includes modern finishes designed for maximum convenience:
Fully furnished kitchens
Aerothermy hot water system
Ducted air conditioning system pre installation.
Underground parking and storage included

Enjoy the Mediterranean Lifestyle
With over 300 sunny days a year, beautiful beaches, lively promenades and a wide range of cultural and leisure activities, Torrevieja offers one of the most attractive lifestyles on the Costa Blanca. Whether you are looking for a permanent home, a holiday retreat or a strong investment opportunity, this new development meets all expectations.

Your New Home Awaits in Torrevieja
Contact us today to schedule a visit and secure your ideal property in this exceptional residential community.
Характеристики
Типология
Пентхаус
Договор
Продажа
Этаж
3 этаж
Лифт
Да
Площадь
100 m²
Помещения
3
Спальни
3
Ванные
2
Терраса
Да
Другие характеристики
  • Встроенный шкаф
  • Бассейн
  • Железная дверь
Информация о ценах
Цена
€ 395 000
Цена за м²
3 950 €/m²
Подробности о расходах
Плата за кондоминиум
Никаких кондоминиальных расходов
Энергоэффективность

Потребление энергии

B

Выбросы CO₂

B

Планировка
Откройте для себя каждый уголок объекта недвижимости
+14
Доп. опции

Свяжитесь с рекламодателем

Или