Bauland zur Verkauf

€ 78.000
500 m²

Notiz

Anzeige aktualisiert am: 04.04.2026
Beschreibung

Referenz: 104405999-104405999

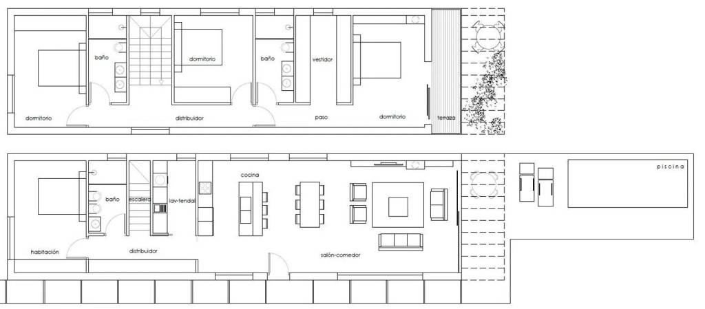
PARCELA EN MEIRÁS, SADA (FRENTE AL PAZO) UBICACIÓN: - MEIRÁS, zona muy tranquila residencial y próxima a OLEIROS y SADA - Buena conexión con via ártabra - Servicios próximos: (Escuelas, farmacia, centro de dia... ) - Frente al pazo de Meirás, zona de INTERÉS CULTURAL y PATRIMONIO PARCELA: - Topografía llana y parcela muy accesible - Doble acceso desde viales (doble frente de parcela) - Elevada en un extremo de la carretera (mayor privacidad) - Vistas despejadas y entorno natural - Cierre posterior y lateral ya ejecutado - Doble orientación NORTE y SURESTE - Todos los servicios a pié de parcela NORMATIVA URBANÍSTICA: - Posibilidad de Sótano, Semisótano, Bajocubierta y Edificación Auxiliar. - Ocupación del 25% - Posibilidad de cubierta plana o inclinada Te orientaremos con cualquier duda urbanística o con el proyecto de vivienda. Vende este inmueble MJV arquitectura&inmobiliaria. (accept no imitations) Estamos en Sta Cristina, en avda Che Guevara nº 35, bajo izda. Si tienes alguna duda y/o quieres concertar una visita, puedes llamarnos al nueve ocho uno 63 61 33.
Merkmale
Vertrag
Verkauf
Art
Bauland
Fläche
500 m²
Preisinformationen
Preis
€ 78.000
Preis pro m²
156 €/m²
Grundriss
Entdecken Sie jeden Winkel des Anwesens
+12
Zusätzliche Optionen

Inserenten kontaktieren

Oder