Ackerland zur Verkauf

€ 115.000
595 m²

Notiz

Anzeige aktualisiert am: 23.10.2025
Beschreibung

Referenz: 4245

Dos parcelas edificables con vistas privilegiadas en Cela, Bueu

Te presentamos dos exclusivas parcelas urbanas de 595m cada una, ubicadas en Cela (Bueu), una de las zonas más demandadas de las Rías Baixas por su equilibrio entre tranquilidad, naturaleza y cercanía al centro urbano.

Proyecto arquitectónico y licencia de obra incluidos, lo que supone un importante ahorro de tiempo y costes: podrás empezar a construir de inmediato.
Muros de contención ya realizados, retranqueos según normativa y excavación lista, agilizando aún más el proceso.
Una parcela dispone de pozo de agua propio y la otra cuenta con luz de obra conectada.
Acceso asfaltado hasta la finca y posibilidad de conexión directa a la red de alcantarillado.
Orientación suroeste, ideal para disfrutar de luz natural durante todo el día y espectaculares atardeceres sobre Bueu y la ría.

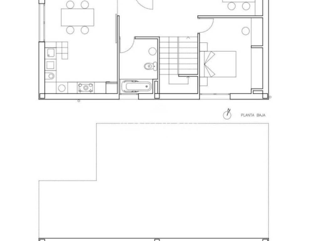
El proyecto contempla una vivienda unifamiliar moderna de 276m construidos más 48m de espacios exteriores cubiertos, distribuidos en:

Planta sótano: 72m

Planta baja: 108m + 18m exteriores

Primera planta: 96m + 30m exteriores

A tan solo 5 minutos en coche de Bueu, sus playas, servicios y comercios, y con opción de entrega llave en mano para que solo tengas que preocuparte de disfrutar de tu nueva casa.

Precio: 115.000 por parcela

Una oportunidad única de construir tu hogar en una ubicación estratégica, con todo lo necesario para empezar ya.
Consúltanos sin compromiso.
Merkmale
Vertrag
Verkauf
Art
Landwirtschaftlich
Fläche
595 m²
Verfügbarkeit
Frei
Preisinformationen
Preis
€ 115.000
Preis pro m²
193 €/m²
Entdecken Sie jeden Winkel des Anwesens
+9
Zusätzliche Optionen

Inserenten kontaktieren

Oder