Penthouse Vicente Ros 28, La Barraca-Santigons, Puçol

€ 285.000
2
150 m²
1
2
Ja
Terrasse
Keller

Notiz

Anzeige aktualisiert am: 31.03.2026
Beschreibung

Referenz: JJ1724/4971


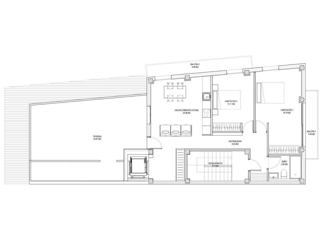
Este ático en Puzol está pensado para parejas jóvenes y familias que quieren espacio, luz y tranquilidad, sin renunciar a estar bien conectados.
La diferencia no está solo dentro de casa, sino fuera: una terraza privada en planta de 45 m2 donde los niños pueden jugar, cenar en familia o simplemente desconectar al final del día. Sin vecinos, sin ruidos. Con la calma que buscas para tu día a día.

Características principales:
• 150 m2 construidos
• 2 habitaciones dobles
• 1 baño completo
• Salón comedor amplio con cocina abierta
• Terraza privada descubierta de 45 m2
• Garaje y trastero incluidos
• Edificio con ascensor
• Toda la última planta del edificio
• Obras ya iniciadas
• Fecha de entrega: diciembre de 2026

A pocos metros del centro de Puzol, con colegios, comercios y servicios.
Excelente conexión con Valencia, Castellón, Parc Sagunt y la playa a solo 5 minutos.
Vivienda ideal para quienes buscan obra nueva con terraza amplia, como residencia habitual en una zona con alta demanda y escasa oferta.

Escríbeme solo si estás valorando seriamente vivir aquí. Te enviaré planos, calidades y disponibilidad actual.
Merkmale
Art
Penthouse
Vertrag
Verkauf
Etage
2 etage
Aufzug
Ja
Fläche
150 m²
Zimmer
2
Schlafzimmer
2
Badezimmer
1
Terrasse
Ja
Garage, parkplätze (auto)
1 in lager/garage
Klimaanlage
Eigenständig
Andere Merkmale
  • Wandschrank
Preisinformationen
Preis
€ 285.000
Preis pro m²
1.900 €/m²
Kostendetails
Eigentumswohnungskosten
Keine Umlagen
Energieeffizienz

CO₂-Emissionen

Nicht angegeben

Grundriss
Entdecken Sie jeden Winkel des Anwesens
+6
Zusätzliche Optionen

Inserenten kontaktieren

Oder