map icon

Single family villa 6 rooms, Albinyana

Albinyana
€ 120,000
5+
212 m²
2

Note

Listing updated on 03/30/2026
Description

reference: 1808

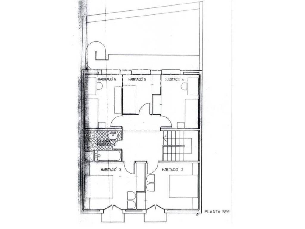
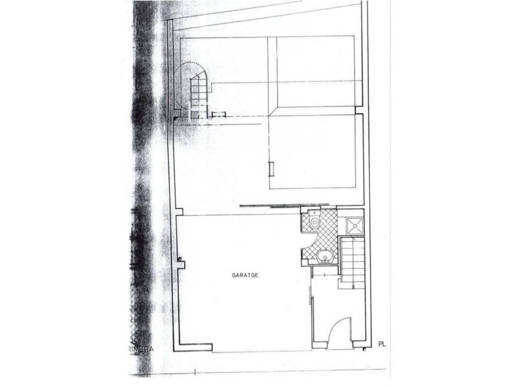
Se ofrece una estructura de vivienda unifamiliar entre medianeras en una ubicación estratégica, ideal para constructores e inversores que busquen finalizar una obra con gran potencial de rentabilidad. El proyecto cuenta con los muros de carga y la cimentación ya ejecutados, ahorrando tiempo y recursos...Descripción del proyecto:.-Superficie total construida: 212 m² distribuidos en tres plantas..-Distribución prevista:.-Planta baja: garaje amplio, zona de acceso y un baño..-Planta primera: salón-comedor espacioso, cocina independiente, un dormitorio y baño completo..-Planta segunda: cinco dormitorios (tres dobles y dos individuales) y un baño..-Diseño versátil: posibilidad de personalización según las necesidades del comprador..-Detalles adicionales: terrazas en las plantas superiores y buena iluminación natural...Ventajas del proyecto:.-Ahorro significativo: Estructura y elementos básicos ya construidos..-Ubicación estratégica: Zona con alta demanda residencial..-Flexibilidad: Ideal para adaptarlo a vivienda familiar o para inversión...Una excelente oportunidad para completar una obra con gran potencial de revalorización. Contáctanos para obtener más información sobre el proyecto y visitas.
Features
Type
Single family villa
Contract
Sale
Floor
Ground floor
Surface
212 m²
Rooms
5+
Bedrooms
6
Bathrooms
2
Surface detail

Residential

Floor
Ground floor
Surface
212.0 m²
Coefficient
100%
Surface type
Main
Commercial area
212.0 m²
Price information
Price
€ 120,000
Price per m²
566 €/m²
Detail of costs
Condominium fees
No condominium fees
Energy efficiency

Energy consumption

G

Emissions of CO₂

Not specified

Discover every corner of the property
+30
Additional options

Contact the advertiser

Or