Single family villa 3 rooms, to be refurbished, Orusco de Tajuña

€ 140,000
3
217 m²
2

Note

Listing updated on 04/01/2026
Description

reference: C0127-ALRE-06169

Buscas vivienda en la Provincia de Madrid?

Century 21 Now IV Te ofrece una oportunidad para adquirir en propiedad este chalet en la localidad de Orusco de Tajuña.

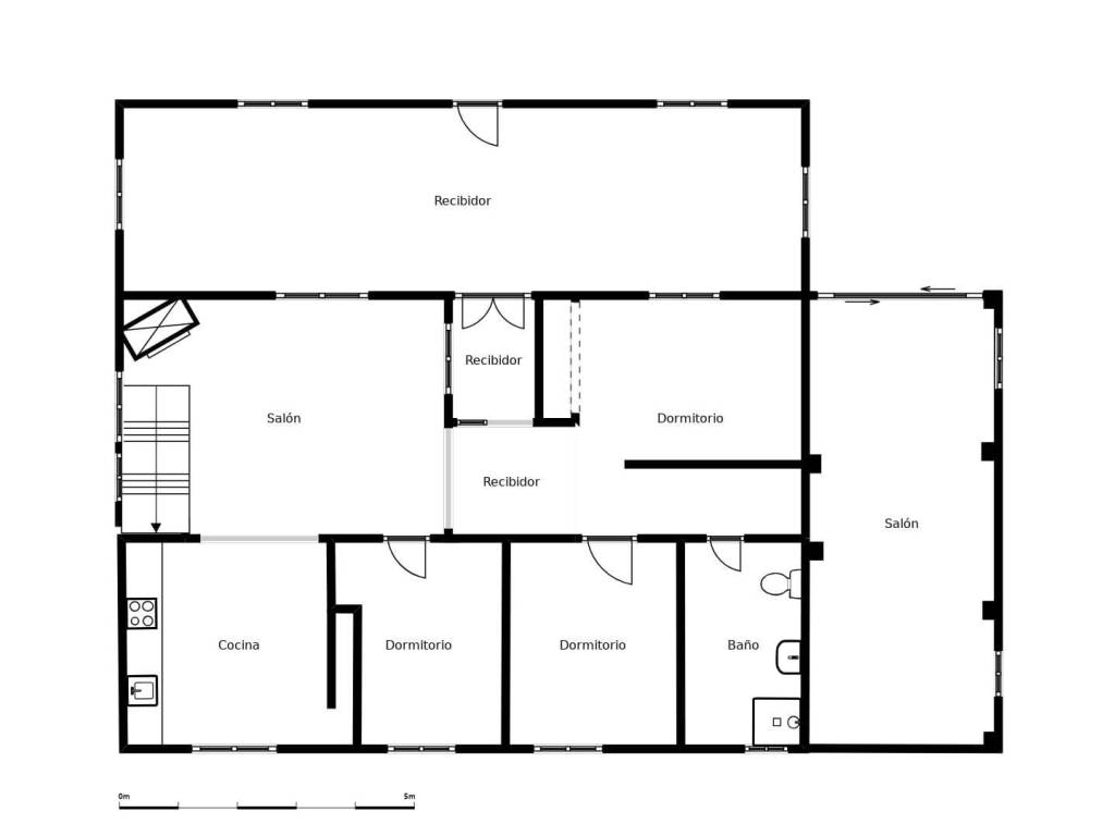
Cuenta con una superficie de 217 m, bien distribuidos en dos plantas sobre rasante destinadas a vivienda con garaje.

Consta de salón-comedor con cocina incluida y salida a jardín con piscina, 3 habitaciones y 2 baños.

Aunque la propiedad necesita una reforma integral, tiene una estructura sólida y una distribución que permite diferentes opciones para modernizarla y aprovechar al máximo cada rincón.

Es ideal para aquellos que buscan un proyecto de renovación con un alto retorno de inversión.

Uno de los puntos más destacados de la propiedad es su jardín con piscina, un espacio perfecto para disfrutar del aire libre, organizar reuniones familiares o simplemente relajarte en tu propio hogar.

Orusco de Tajuña es una localidad tranquila pero bien conectada, ubicada a tan solo 45 minutos de Madrid capital. La proximidad con el Parque Natural del Alto Tajo garantiza un entorno de gran belleza natural, perfecto para quienes buscan paz, privacidad y contacto con la naturaleza, sin perder la comodidad de las comunicaciones a la ciudad.

Esta propiedad te ofrece la posibilidad de crear un espacio único, adaptado a tus gustos y necesidades.

Necesitas más información?

Llámanos y nuestro especialista en la zona te solventará cualquier duda.
Al llamar danos la referencia C0127-ALRE-06169

NO COBRAMOS HONORARIOS AL COMPRADOR

CENTURY 21 Now IV
"Lo mejor de las personas al servicio de las personas".
Features
Type
Single family villa
Contract
Sale
Floor
1
Surface
217 m² | commercial 434 m²
Rooms
3
Bedrooms
3
Bathrooms
2
Other features
  • Pool
Surface detail

Residential

Floor
1
Surface
217.0 m²
Coefficient
100%
Surface type
Main
Commercial area
217.0 m²

Land

Floor
Ground floor
Surface
217.0 m²
Coefficient
100%
Surface type
Accessory
Commercial area
217.0 m²
Price information
Price
€ 140,000
Price per m²
323 €/m²
Energy efficiency

Emissions of CO₂

Not specified

Discover every corner of the property
+41
Additional options

Contact the advertiser

Or