Chalet Cl Mulhacen, Balcon De San Pd 26 Ur A Vista-casa L, San Pedro-Pueblo, Marbella

€ 1.695.000
4
490 m²
3
Lujo
Balcón
Terraza
Trastero

Nota

Anuncio actualizado el 14/04/2026
Descripción

referencia: STRAND3674

¡Gran bajada de precio para venta rápida! Nos enorgullece presentar esta exclusiva, elegante y moderna villa, situada en la codiciada zona de San Pedro de Alcántara. Esta en perfectas condiciones y ofrece un estilo de vida lujoso en un vecindario tranquilo y seguro. Al entrar a la propiedad, le recibe un vestíbulo de doble altura que crea una atmósfera grandiosa y acogedora. Desde el vestíbulo, accedes a una amplia sala de estar y un área de comedor, inundadas de luz natural gracias a las grandes puertas de cristal que se abren a una extensa terraza cubierta. La villa cuenta con cuatro dormitorios y tres baños, incluidos dos en-suite, proporcionando espacio más que suficiente para una familia o invitados. Los baños son modernos y con estilo, equipados con accesorios de alta calidad. Además, hay un aseo de cortesía para mayor comodidad. Entre las características impresionantes de la propiedad se encuentran una sala de cine, un cuarto de juegos y un bar, brindando múltiples opciones para el entretenimiento. Para aquellos que buscan mantenerse activos, también hay un gimnasio. Y no olvidemos el amplio garaje para dos coches, con espacio adicional en la entrada para al menos otros tres vehículos; si necesitas más espacio, es fácil de organizar. Construida sobre una generosa parcela de 737 m², la villa cuenta con un jardín bellamente paisajístico con árboles frutales. La piscina privada climatizada es el lugar perfecto para relajarse, mientras que la terraza ofrece un espacio ideal para cenas al aire libre y entretenimiento. En la planta superior, encontrarás otra amplia terraza descubierta con vistas agradables hacia los jardines y el mar, perfecta para disfrutar de maravillosos atardeceres. La ubicación es clave, y esta villa está idealmente situada a poca distancia del centro de la ciudad, playa, restaurantes, tiendas, parques infantiles y escuelas. El área es conocida por su tranquilidad y seguridad, convirtiéndola en un lugar ideal para llamar hogar. También tiene la posibilidad de ampliar la vivienda facilmente por si faltaría mas espacio para vivir. En resumen, esta lujosa villa en San Pedro de Alcántara ofrece un espacio de vida moderno y elegante, con una gama de características impresionantes y una ubicación conveniente. Ya sea que busques un hogar familiar o un retiro vacacional, ¡esta propiedad lo tiene todo!
Características
Tipología
Chalet
Contrato
Venta
Planta
Planta baja
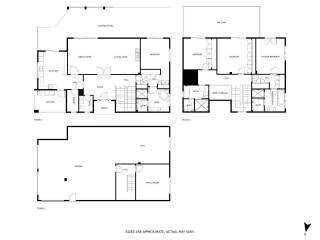
Superficie
490 m² | comercial 1.227 m²
Habitaciones
4
Dormitorios
4
Baños
3
Balcón
Terraza
Garaje, plazas de aparcamiento
1 en garaje privado, 2 en aparcamiento/garaje público
Otras características
  • Sistema de alarma
  • Piscina
Detalle superficie

Vivienda

Planta
Planta baja
Superficie
490,0 m²
Coeficiente
100%
Tipo de superficie
Principal
Superficie construida
490,0 m²

Terreno

Planta
Planta baja
Superficie
737,0 m²
Coeficiente
100%
Tipo de superficie
Anexos
Superficie construida
737,0 m²
Información del precio
Precio
€ 1.695.000
Precio del m²
1.381 €/m²
Desglose de los costes
Gastos de comunidad
Ningún gasto de comunidad
Eficiencia energética

Emisiones de CO₂

No indicado

Descubre otros ángulos del inmueble
+41
Hipoteca
%
Duración de la hipoteca

Cuota desde € 4.560 al mes

€ 508.500 (30%)

€ 1.186.500 (70%)

¿Quieres un presupuesto personalizado y gratuito?

Opciones adicionales

Contactar con el anunciante

O