map icon

Piso de dos habitaciones nuevo, planta baja, La Cuesta-Finca España-Los Valles, San Cristóbal de La Laguna

San Cristóbal de La Laguna
€ 268.000
2
84 m²
1
B
Terraza
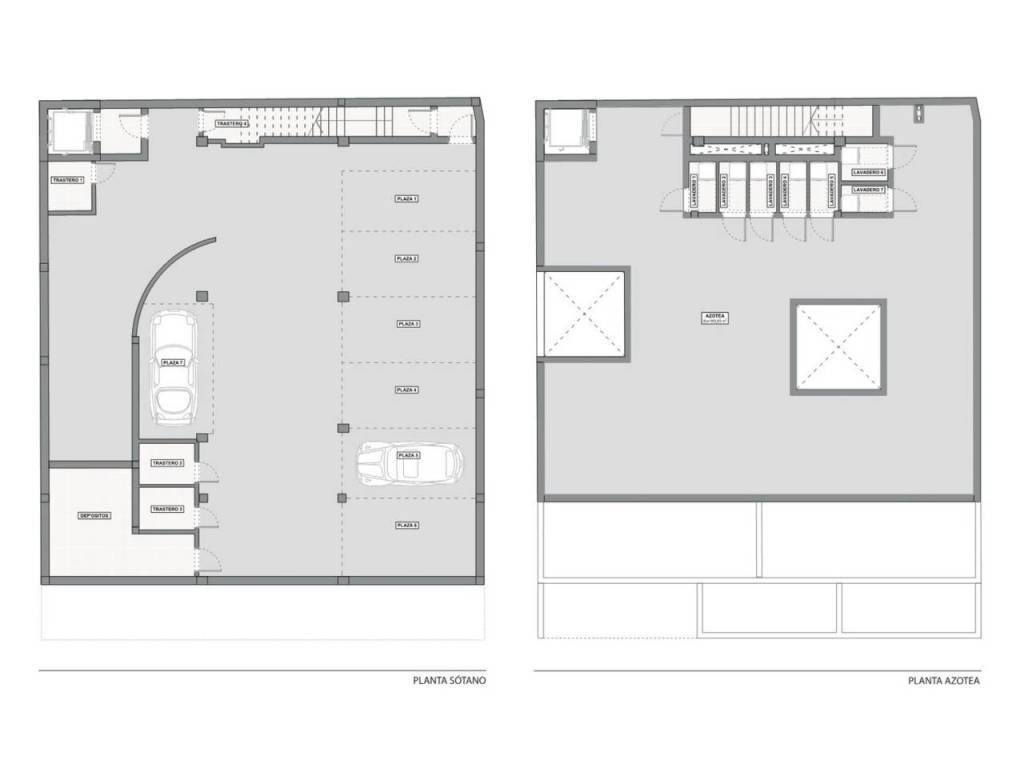
Trastero

Nota

Anuncio actualizado el 10/04/2026
Descripción

referencia: OFFER-21

Descubre esta exclusiva promoción de obra nueva en Finca España, La Laguna, ubicada a pocos metros de la avenida principal y rodeada de todos los servicios esenciales como farmacias, supermercados y centros de salud.El residencial está compuesto por solo siete viviendas, lo que garantiza un ambiente tranquilo y acogedor. La promoción ofrece diversas tipologías para adaptarse a diferentes necesidades, con distribuciones modernas y funcionales.Las viviendas cuentan con dormitorios equipados con armarios empotrados, proporcionando comodidad y óptimo aprovechamiento del espacio. Algunas unidades disponen de terraza, ideales para disfrutar del aire libre, mientras que otras ofrecen jardín privado, perfecto para quienes buscan un espacio exterior más amplio.Además, todas las viviendas incluyen lavadero, aportando un extra de practicidad en el día a día. Existe la opción de adquirir plaza de garaje, añadiendo comodidad y seguridad.Una oportunidad única para vivir en una zona bien comunicada, con todos los servicios al alcance y en un entorno residencial consolidado
Características
Tipología
Piso
Contrato
Venta
Planta
Planta baja
Ascensor
Superficie
84 m²
Habitaciones
2
Dormitorios
2
Baños
1
Terraza
Garaje, plazas de aparcamiento
1 en garaje privado
Calefacción
Central
Otras características
  • Armario empotrado
Información del precio
Precio
€ 268.000
Precio del m²
3.190 €/m²
Desglose de los costes
Gastos de comunidad
Ningún gasto de comunidad
Eficiencia energética

Emisiones de CO₂

No indicado

Descubre otros ángulos del inmueble
+3
Hipoteca
%
Duración de la hipoteca

Cuota desde € 721 al mes

€ 80.400 (30%)

€ 187.600 (70%)

¿Quieres un presupuesto personalizado y gratuito?

Opciones adicionales

Contactar con el anunciante

O