map icon

Casa adosada 3 habitaciones, Cijuela

Cijuela
€ 186.000
3
177 m²
3
Terraza

Nota

Anuncio actualizado el 01/04/2026
Descripción

referencia: SOTO8-OBRACIJUELA/6213

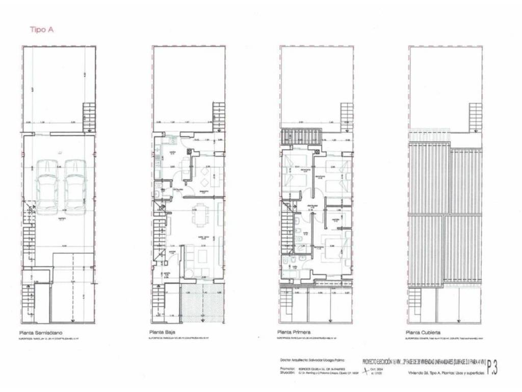
PRIMERA FASE A LA VENTA!! Atención porque sacamos a la venta la primera fase de 4 viviendas de obra nueva ubicadas en la Calle Doctor Palomo Crespo de Cijuela. La primera de ellas ya está vendida por lo que quedan 3!! Construidas sobre una parcela de 121 metros cuadrados, las viviendas disponen de un total de 177 m2 construidos distribuidos en 3 plantas. Planta semisótano destinado a garaje con capacidad para 2 vehículos , planta baja con salón-comedor con acceso a gran patio de unos 40 m2, cocina, aseo y despacho y plata alta con 3 dormitorios, teniendo el principal vestidor y baño en suite y 1 baño adicional
Se ofrecen excelentes facilidades de pago y la entrega se realizará en agosto-septiembre de 2026.
En el precio no están incluidos los impuestos y gastos sujetos a la compraventa. Las superficies descritas son aproximadas.
Llámanos para ampliar información sin ningún tipo de compromiso!!

REFERENCIA SOTO8-OBRACIJUELA

El precio indicado no incluye gastos ni impuestos derivados de la compraventa. Estos serán los que correspondan según la legislación vigente. Tampoco se incluyen los honorarios profesionales de la agencia inmobiliaria. Las superficies expresadas tienen carácter descriptivo y son aproximadas
Características
Tipología
Casa adosada
Contrato
Venta
Planta
Planta baja
Superficie
177 m² | comercial 298 m²
Habitaciones
3
Dormitorios
3
Baños
3
Terraza
Garaje, plazas de aparcamiento
1 en garaje privado
Otras características
  • Puerta blindada
Detalle superficie

Vivienda

Planta
Planta baja
Superficie
177,0 m²
Coeficiente
100%
Tipo de superficie
Principal
Superficie construida
177,0 m²

Terreno

Planta
Planta baja
Superficie
121,0 m²
Coeficiente
100%
Tipo de superficie
Anexos
Superficie construida
121,0 m²
Información del precio
Precio
€ 186.000
Precio del m²
624 €/m²
Desglose de los costes
Gastos de comunidad
Ningún gasto de comunidad
Eficiencia energética

Emisiones de CO₂

No indicado

Descubre otros ángulos del inmueble
+10
Hipoteca
%
Duración de la hipoteca

Cuota desde € 500 al mes

€ 55.800 (30%)

€ 130.200 (70%)

¿Quieres un presupuesto personalizado y gratuito?

Opciones adicionales

Contactar con el anunciante

O