map icon

Terreno urbanizable en Venta

Catarroja
€ 330.000
134 m²

Nota

Anuncio actualizado el 18/06/2025
Descripción

referencia: P4591

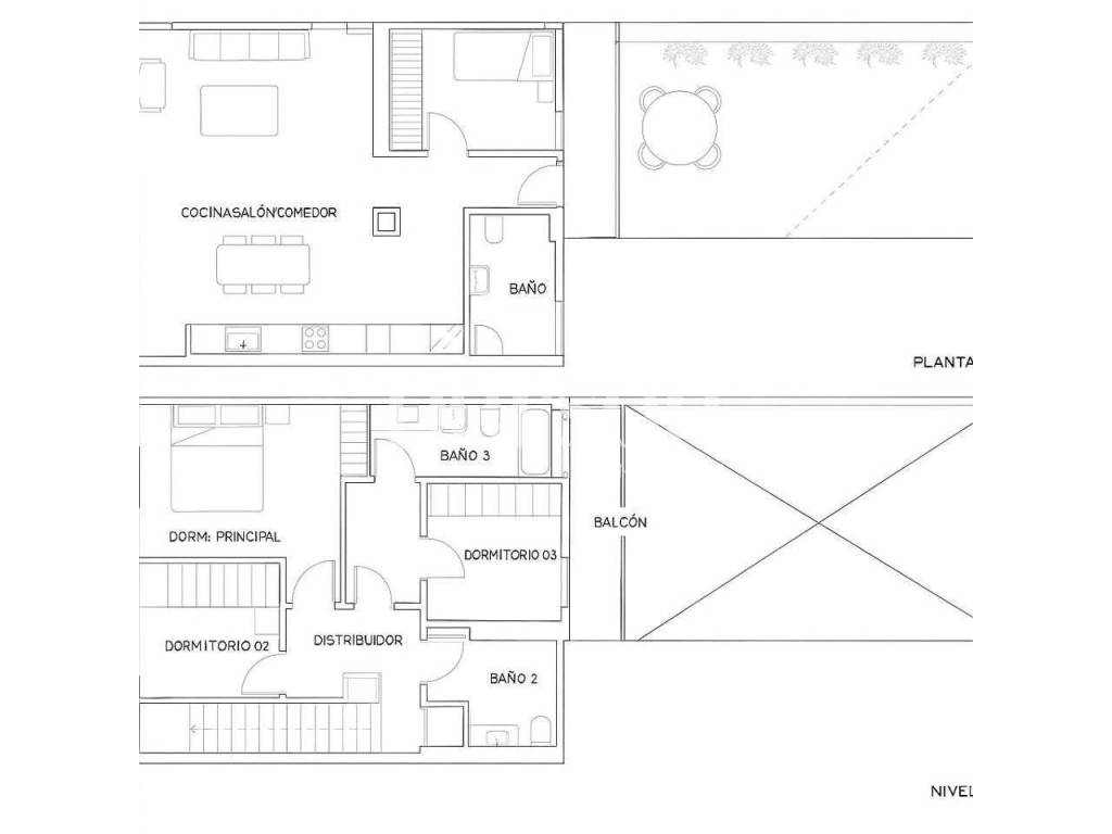
Te presentamos esta luminosa y moderna casa de pueblo ubicada en el corazón de Catarroja. Con una superficie construida de 135 m² distribuidos en dos plantas, esta propiedad ha sido cuidadosamente renovada, combinando detalles tradicionales con acabados contemporáneos que aportan calidez, funcionalidad y estilo.

La vivienda cuenta con 4 dormitorios, perfectos para una familia o incluso para quienes necesiten espacios de trabajo en casa. Dispone de 3 baños completos, todos con acabados actuales y materiales de primera calidad.

En la planta baja se encuentra una elegante y amplia zona de día, compuesta por un salón-comedor con cocina abierta estilo americana, totalmente integrada y equipada, que aprovecha al máximo la luz natural gracias a sus grandes ventanales y su diseño abierto. El espacio bajo la escalera se ha aprovechado con mobiliario funcional y moderno, manteniendo la estética minimalista. Además en la planta baja encontraremos un espacio dormitorio o estudio, y un baño completo.

Uno de los principales atractivos de esta vivienda es su jardín-terraza de más de 30 m², un espacio exterior ideal para disfrutar del clima mediterráneo durante todo el año, celebrar reuniones familiares o simplemente relajarse al aire libre. Este patio ofrece una mezcla única de muros con historia y acabados renovados que conservan el encanto original de la casa.

La planta superior, con techos altos y vigas de madera vistas, acoge el dormitorio principal con baño en suite y vestidor, dotado de una excelente ventilación e iluminación natural. El diseño de esta planta mantiene la armonía entre lo rústico y lo moderno, creando un ambiente acogedor y sofisticado, y además en esta planta encontraremos 2 dormitorios y un baño completo.

La vivienda está lista para entrar a vivir y representa una oportunidad ideal para quienes buscan una casa con carácter en una zona tranquila, pero bien comunicada con Valencia capital y con todos los servicios a su alcance.

Person Inmobiliaria pone a su disposición un equipo de profesionales del sector inmobiliario con gran experiencia para llevar a cabo con éxito sus operaciones de compra, venta o alquiler de su propiedad o local comercial.

Person Inmobiliaria
de persona a persona
Características
Contrato
Venta
Tipología
Terreno urbanizable
Superficie
134 m²
Información del precio
Precio
€ 330.000
Precio del m²
2.463 €/m²
Plano
Descubre otros ángulos del inmueble
+29
Opciones adicionales

Contactar con el anunciante

O