map icon

Tienda - Local comercial en Alquiler

BarcelonaLa Dreta de l'Eixample
€ 12.000/mes
2.000 m²

Nota

Anuncio actualizado el 12/03/2026
Descripción

referencia: B01155/4969_A

oportunidad de proyecto, fantastica ubicacion en una de las principales vias que atraviesa la ciudad de barcelona. con una gran fachada de 4 accesos de 3metros de ancho y 5 metros de altura cada entrada.

ideal para potenciar tu marca con una brutal publicidad diaria gratuita

maxima visiblidad, con una fluencia de 55.000 vehiculos diarios

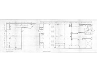
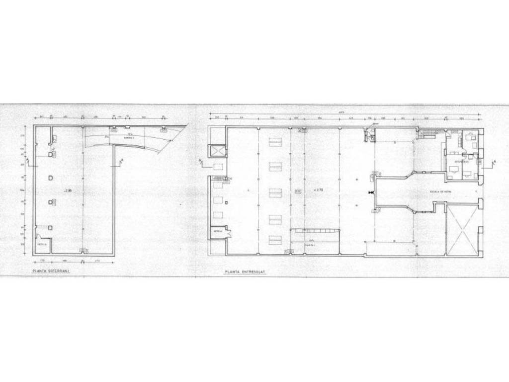
local de 2000 m2 dividido en 3 ambientes, consta con 870 m2 en planta, seguidamente encontraríamos la bajada al sótano con 290 m2 y desde la planta 0 se encuentra la rampa de acceso a superior +1 con 840 m2

posiblidad de dividir el local,

muchas posiblidades de proyecto.
ejemplos.
-marca oficial de automocion.
-taller multimarca como flexicar.
-aparcamiento para coches electricos.
-gimnasio.
-concecionario con taller en sotano.
Características
Contrato
Alquiler
Superficie
2.000 m²
Información del precio
Precio
€ 12.000/mes
Precio del m²
6 €/m²
Desglose de los costes
Gastos de comunidad
Ningún gasto de comunidad
Fianza
No indicada
Eficiencia energética

Emisiones de CO₂

No indicado

Opciones adicionales

Contactar con el anunciante

O