Piso Avenida del Oeste, El Pilar, València

€ 1.290.000
5+
484 m²
3+
4
Lujo
Balcón
Terraza

Nota

Anuncio actualizado el 01/04/2026
Descripción

referencia: 264188

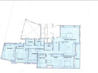
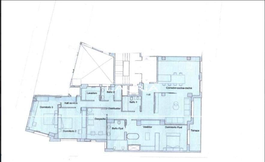
AMPLIA VIVIENDA EN BARON DE CARCER

Lauria Inmobiliaria presenta Gran inmueble de 480 metros cuadrados, ubicado en un bonito edificio señorial de mediados de siglo XX completamente exterior.

Por su distribución en chaflán , disfruta de 10 ventanales y un gran balcón con unas amplias y despejadas vistas de la avenida del Oeste.

Se trata de dos inmuebles independientes de 280 y 209 metros cuadrados respectivamente.

Actualmente es una oficina y con posibilidad de transformarlo muy fácilmente en vivienda.

Reformado y con todas la instalaciones actualizadas, también carpintería interior, los suelos y los ventanales con aislamiento acústico y térmico.

Dispone de aire acondicionado canalizado por toda la casa y calefacción de gas natural por radiadores.

Es una propiedad única , con grandes espacios y una magnífica distribución que le proporciona gran luminosidad la mayor parte del día.

Inmejorablemente ubicada, en pleno centro de Valencia, a un paso de la Plaza del Ayuntamiento, del Mercado Central y la Plaza de la Reina.

Si busca vivir en el centro, en grandes espacios o necesita tener dos viviendas anejas y a su vez disfrutar de vistas despejadas, grandes espacios y mucha luminosidad, esta es su oportunidad. Contacte con nosotros.

Desde 1986 al servicio de nuestros clientes. Seriedad y confianza en tus gestiones inmobiliarias.
Características
Tipología
Piso
Contrato
Venta
Planta
4 planta
Ascensor
Superficie
484 m²
Habitaciones
5+
Dormitorios
8
Baños
3+
Balcón
Terraza
Aire acondicionado
Individual, frío
Otras características
  • Armario empotrado
  • Exterior
  • Sistema de alarma
Información del precio
Precio
€ 1.290.000
Precio del m²
2.665 €/m²
Eficiencia energética

Emisiones de CO₂

Inclasificable

Descubre otros ángulos del inmueble
+22
Hipoteca
%
Duración de la hipoteca

Cuota desde € 3.470 al mes

€ 387.000 (30%)

€ 903.000 (70%)

¿Quieres un presupuesto personalizado y gratuito?

Opciones adicionales

Contactar con el anunciante

O