map icon

Terreno urbanizable en Venta

Vigo
€ 120.000
540 m²

Nota

Anuncio actualizado el 01/03/2026
Descripción

referencia: S000061

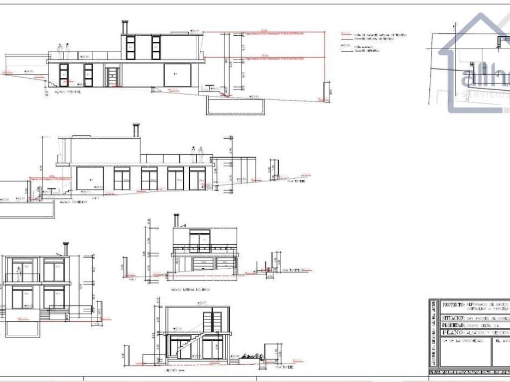
TERRENO CON PROYECTO Y LICENCIA EN SAN ANDRÉS DE COMESAÑA

TERRENO CON PROYECTO Y LICENCIA EN SAN ANDRÉS DE COMESAÑA

Parcela totalmente llana, soleada y con excelente orientación. Tiene una superficie de 540 m2 según catastro. Dispone de PROYECTO DE EJECUCIÓN Y LICENCIA concedida para construir un chalet de dos plantas con una superficie de 199 metros cuadrados distribuidos de la siguiente manera:

Planta Baja: hall-distribuidor, tres dormitorios, baño, cuarto de lavandería, salón-comedor y cocina de concepto abierto con salida a terraza. Subtotal: 140 m2.
Planta Primera: escalera acceso, dos dormitorios, dos baños, terraza. Subtotal: 59 m2

El proyecto cumple con todos los requisitos de modernidad. Estamos ante una arquitectura contemporánea con toques minimalistas, destacando la simplicidad de sus formas y la racionalidad del espacio.
Contar con un proyecto de ejecución aprobado te permitirá iniciar la construcción sin tener que invertir meses en trámites administrativos, elaboración y visado de planos ni gestiones con el ayuntamiento.

Se encuentra a tan sólo 10 minutos de Plaza América, de la Playa de Samil o la del Vao.
En cuanto a comunicaciones, está muy próximo a la parada de autobús urbano y a la entrada de la autovía de circunvalación de Vigo que te lleva al Hospital Álvaro Cunqueiro, a la Ciudad Universitaria, a los Parques Tecnológicos de Vigo y de Vincios, al Aeropuerto o a cualquier otro destino (Santiago, La Meseta o Portugal...).

Ubicación privilegiada, en un entorno natural, donde podrás disfrutar de la ruta de senderismo de A Fonte da Loureira o del bonito Parque Forestal ?Aguieira".

Si lo necesitas, también podemos ayudarle a conseguir la financiación con condiciones muy ventajosas. Además, te explicaremos todo el proceso de compra, impuestos, hipoteca, etc.

No dude en pedir más información y concertar una visita. Estaremos encantados de informarle y de asesorarle poniendo a su disposición todos los servicios que necesita para la compra.
+INFO 620 873 735



ALLHOUSES
Con nosotros... como en casa.

Nota: este anuncio es meramente informativo y carece de valor contractual, pudiendo contener algún error involuntario.
Características
Contrato
Venta
Tipología
Terreno urbanizable
Superficie
540 m²
Información del precio
Precio
€ 120.000
Precio del m²
222 €/m²
Descubre otros ángulos del inmueble
+15
Opciones adicionales

Contactar con el anunciante

O