map icon

Casa unifamiliar 2 habitaciones, Fuente Álamo de Murcia

Fuente Álamo de Murcia
€ 242.000
2
175 m²
1
No
Terraza
Trastero

Nota

Anuncio actualizado el 03/04/2026
Descripción

referencia: N6871

PAREADO LLAVE EN MANO EN FUENTE ALAMO, MURCIA

Residencial de adosados, villas independientes y pareados en Fuente Álamo, Murcia.

Hay siete modelos diferentes de casas para elegir, diseñados para adaptarse al gusto de todos.

Diseños rústicos combinados con materiales de primera calidad y un enfoque en el espacio de vida cómodo hay algo para todos.
Los residentes de esta comunidad privada de hermosas y amplias casas también podrán disfrutar de sus propios jardines y piscinas comunitarias.

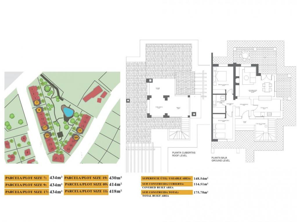
Este pareado de diseño inusual tiene 2 dormitorios y 1 baño, cocina independiente, salón con puertas de patio que dan acceso al porche cubierto y a la terraza semicubierta de la azotea.

Tiene la opción de una piscina privada con un coste adicional.


Fuente Álamo de Murcia es una localidad y municipio de la Región de Murcia, en el sur de España. Está situada a 22 km al noroeste de Cartagena y a 35 km al suroeste de Murcia.

La ciudad se encuentra en la cuenca del Mar Menor, rodeada por las sierras de Algarrobo, Los Gómez, Los Victorias y el Carrascoy.
El agua de estas montañas fluye hacia la Rambla de Fuente Álamo y luego hacia el Mar Menor.

Fuente Álamo se encuentra a 30 minutos del aeropuerto de Murcia - Corvera.
Características
Tipología
Casa unifamiliar
Contrato
Venta
Planta
1
Ascensor
No
Superficie
175 m² | comercial 589 m²
Habitaciones
2
Dormitorios
2
Baños
1
Terraza
Otras características
  • Armario empotrado
Detalle superficie

Vivienda

Planta
1
Superficie
175,0 m²
Coeficiente
100%
Tipo de superficie
Principal
Superficie construida
175,0 m²

Terreno

Planta
Planta baja
Superficie
414,0 m²
Coeficiente
100%
Tipo de superficie
Anexos
Superficie construida
414,0 m²
Información del precio
Precio
€ 242.000
Precio del m²
411 €/m²
Eficiencia energética

Emisiones de CO₂

No indicado

Descubre otros ángulos del inmueble
+44
Hipoteca
%
Duración de la hipoteca

Cuota desde € 651 al mes

€ 72.600 (30%)

€ 169.400 (70%)

¿Quieres un presupuesto personalizado y gratuito?

Opciones adicionales

Contactar con el anunciante

O